
“请研究一下改变住房建筑标准的问题,首先是民居,给军队的住房,从远东开始。我想提醒你们注意,我想让这件事快点办好,要和俄罗斯军官尊严相称,不要让我们的人继续住在那些令人恶心的赫鲁晓夫楼里。” ——普京2007年11月在军队高级将领会议上的讲话
让普京感到恶心的赫鲁晓夫楼,是一种用预制板修建的单元楼,因为结构简单,造价低廉得以大规模复制,它的诞生主要是为了实现「人人有房住」的共产主义理想。苏联援建时期的中国也曾大量兴建,一度遍布全国各地,特别是一些老工业区。

▲赫鲁晓夫楼的外观,是不是很眼熟
今天已经很少有人会提起赫鲁晓夫楼了,但在那个房屋资源稀缺的年代,它也曾圆过许多人的住房梦——
01
居者有其屋
在北京,我第一次住进楼房,那种红色砖墙的五层楼房。日后我才知道,它也被称为“赫鲁晓夫楼”……让我兴奋的是,卫生间与厨房都在小小的套间里,再不用夜半跑到院子外透风的厕所里……人们分享公共澡堂,第一次如此大规模看到赤裸的身体。
正如许知远所描述的那样,赫鲁晓夫楼以紧凑闻名,将极简主义发挥到了极致。房屋内所有不必要的装饰物和功能一律取消,严格控制厨房、卫生间、门厅和过道的面积。

▲35㎡的赫鲁晓夫公寓平面图
楼内每一平方厘米的建筑面积都经过了详细的数学计算和人体工程学设计,包括人体在厨房、厕所和浴室的活动范围,尽量以最节约的面积来满足居住要求。这种纸上谈兵的设计方法,理论上是ok的,但实际生活却常常捉襟见肘,以至于出现了「合理设计,不合理使用」的情况。

最普遍的问题是厨房不过5㎡,勉强能放下一张餐桌,一个转身就会撞到椅子,或者碰倒瓶瓶罐罐。

卫生间面积也控制在3㎡以内,稍微胖一点的人进去就会很困难,据说赫鲁晓夫在一次视察中,亲自进入这种厕所试了试,然后说:“我要是都能在这里上厕所,其他人就都没问题!”

而中国版赫鲁晓夫楼的卫生间还要更小一些,那时我们还没有热水器,所以没有洗浴的考虑,只有单一的如厕功能,大家都到公共澡堂里面洗澡。
直到1988年,平衡热水器大规模普及后,人们才开始在厕所里面烧水洗澡,而这种打补丁式的粗暴改造,也成了我们现有卫生间的雏形。
90后,00后不了解这段历史的同学,可能会觉得这种厕浴混合的卫生间再正常不过了,但其实它的出现并没有经过合理的设计规划,更多的是一种为了生活不得已的将就。

在接下来的十多年中,我生活在几个不同的这样半军事化的大院中,我所居住的单元房也有了细微的变化,它们逐渐变得宽敞些,新安装的热水器使得在家里也可以淋浴。
在厕所里洗澡,听上去容易,实施起来却是困难重重。一个是面积太小,一个是热水器不安全,早期生产的直排式热水器把燃烧产生的废气直接排放到室内空气中,造成了大量的一氧化碳中毒事件,通风换气成了大问题。
简陋的房屋已经无法满足人们日益增长的需求,我们的住房急需从温饱型向小康型过渡。
02
居者优其屋
1977年10月20日,邓小平在视察北京的前三门住宅楼工地时,提出以后的住宅楼要增加面积,尽可能安装沐浴设施,让居民能在家里洗上热水澡,由此拉开了我们住房改革的序幕。

▲邓小平视察前三门住宅建设情况
这一阶段可以说是我们住宅产业发展的黄金时期,有关住宅的专题研究和竞赛层出不穷,一时间百花齐放,百家争鸣。
其中影响最为深远的是1988年中日共同合作的JICA小康住宅项目,由国家建设部主持,集合了数十位中国专家与日本专家一起合作,对我们国家的居住习惯、地方特点以及工业技术等方面进行研究,最终编制出一套《中国城市小康住宅通用体系(WHOS)设计通则》,奠定了国家住宅产业发展的基础。
我们今天常常挂在嘴边的「洗-切-煮」料理动线,还有动静分离、公私分离、干湿分离等等这些设计理念,都是小康住宅标准首先提出来的。
这套标准一共十条,其中第五条明确提出了厕浴分离的规定,也就是我们今天所说的「分离式卫生间」,当时专家们称之为分组分间布置。
卫生间分组分间布置是提高住宅文明标准的重要措施,分间使用是为保证生理卫生私密要求,避免使用干扰和冲突。
在有条件的情况下,应独立设置厕所。洗衣机放置在干燥通风的开敞(半开敞)的空间内。
—— 开彦先生《中国城市小康住宅通用体系(WHOS)介绍》
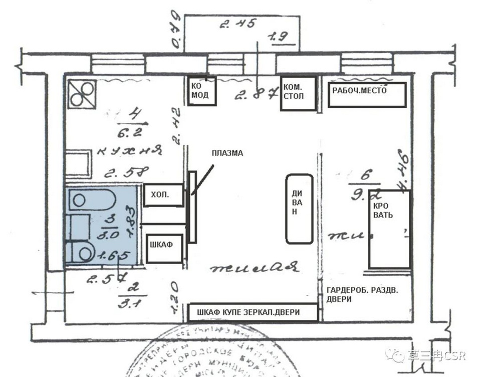
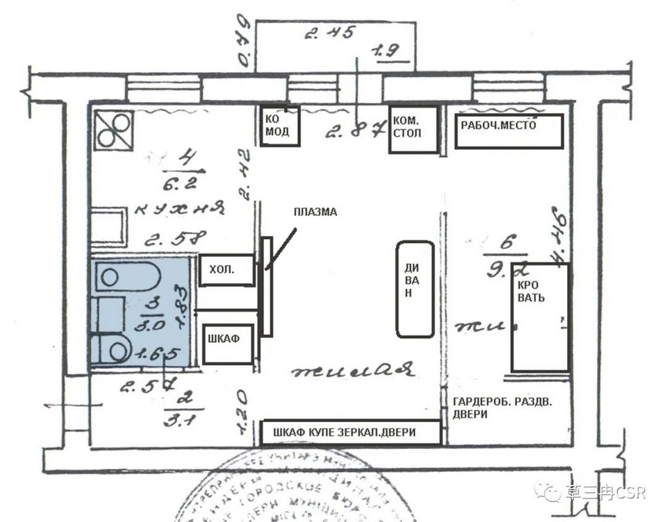
针对具体的卫生间布局,小康住宅标准给出了高中低三个水平,与我们今天讨论的「三分离」、「四分离」有许多共通之处。
最低水平:一个封闭空间设便器和洗浴设施,另一个开敞(半开敞)空间设盥洗设备和留出洗衣机的位置。
一般水平:分设两个以上空间,将洗浴和厕所分开设置
理想水平:浴、便、洗面、洗衣分设在两个以上空间内,再增设一个厕所

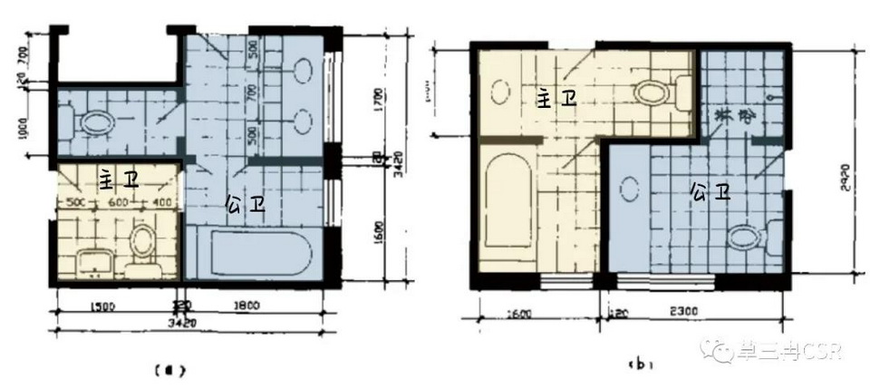
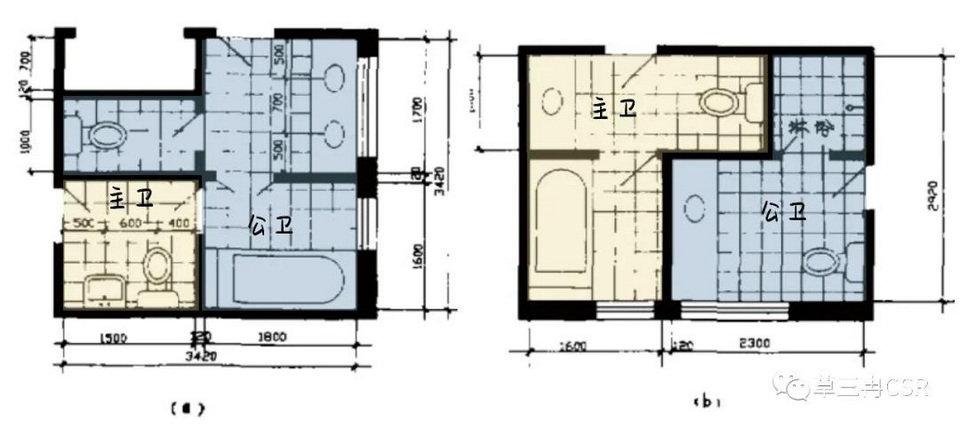
随后《中外建筑》杂志也针对有两个卫生间的户型如何分隔马桶和淋浴进行了探讨。对比今天的效果图设计师,当年的研究者是真正把根扎在住宅的功能和体验上。

▲ 林清南 《中外建筑》 1996年003期
光说不练假把式,小康住宅的十条标准拟定之后,项目组先后设计建造了几处实验住宅。其中最为出名的是石家庄市的联盟住宅小区,作为试点住宅,它是完全按照小康住宅的标准来建造的。
从户型图可以看到,房子设有一个独立玄关(2㎡),卫生间的厕所(1㎡)和洗浴间(2.5㎡)也是独立分开的,洗衣机放在一个半开放的空间,每个功能区既独立又相互连通。

抛开面积不谈,联盟小区在功能和动线上的处理,完全可以吊打现在大多数商品房户型。
对比上一代赫鲁晓夫楼,小康住宅更加强调使用上的合理性,而联盟小区的建设成功证明了这种合理性是可以实施和建造出来的,在当时形成了影响很大的「联盟效应」,为我们树立「国宅」的品牌形象迈出了第一步。
03
居者忧其屋
可惜的是,当时住宅正处于从计划经济向商品经济转换的时期,由于缺乏经验,严重混淆了住宅和房地产的概念。很多人觉得做好房地产就是做好住宅,把住宅产业化这支大旗交在了房地产商手上,却忘了商人重利轻离别。
于是出现了一幕奇幻的景象——为了快周转采用预售制卖毛坯,把装修难题甩给普通大众;为了让买家快速掏钱,一味把客厅做大,砍掉玄关又压缩厨卫空间;在面积和营销上下文章,却不谈任何实用价值。
而当初小康住宅项目的研究成果,在2000年以后也被人为地边缘化了…
小康住宅标准提出的厕浴分离卫生间,出世不久便遭遇「雪藏」,直到现在我们的卫生间依然在延续赫鲁晓夫楼时期的粗放模式,虽然在设备和外表上可以跟国际接轨,但体验还是差了一大截。

▲ 不足3㎡的商品房卫生间
欣慰的是,在小康住宅项目被搁置了二十年后的今天,有越来越多的人意识到提高卫浴品质的重要性,也有博主和媒体(包括部长)开始对分离式卫生间进行科普。
但质疑声也随之而来,分离式卫生间被贯上「日本舶来品」的标签,「中国人不适合分离式卫生间」「水土不服」的声音也开始出现,完全无视二十多年前小康住宅项目的专家们为了改善大伙居住环境而付出的努力和心血。
那些反对的声音中不乏有执着过往不愿改变观念的人,也有基于立场为了维护自身利益的人。但时代已经不同,那个「只求数量不求质量」的时代就要结束,历史的车轮滚滚向前,未来是属于那些「求好,求精」的人们。
两岸猿声啼不住,轻舟已过万重山。
未来已来,今天的设计师们,请延续小康住宅的研究精神,不恋过往,不追求表面,扎根在实打实的住宅品质和体验上。
要知道属于中国人的「国宅」形象,不是简单一句「中国人合适/不合适」就可以立起来的,只有实践才是检验真理的唯一标准!
-End-
编辑 | 与鹿
校对 | 与鹿
投稿邮箱
53963608@qq.com
