中国建筑设计研究院有限公司总建筑师
李兴钢工作室创始人/ 主持建筑师
2022年冬奥会延庆赛区总规划设计师
李兴钢

走进建筑师李兴钢的办公室,恰逢他正在做”胜景几何“的展览,展览像是章回体小说一样,一个个小小的模块代表着他对建筑意义的思考,他眼中的建筑究竟是什么?”胜景几何“ 是一次回顾总结,还是一个新的起始点。 建筑作品的背后是人,本篇将带领大家,走进李兴钢的建筑时间,他似乎不带有“一位建筑师该有的野心”,细细品味他过去的那些年...
房子,应该是安全的
我是唐山人,大地震让建筑和城市进入了我的意识
从上大学开始学习学建筑,大多数人对职业的选择都跟会跟自己学习的专业有关系,大学的专业训练也是未来职业发展方向的入门,这肯定是一个很重要的起点。
对我来讲,“建筑和城市”开始进入我的意识,应该是童年的时候。因为,我是唐山人,经历过唐山大地震。一般我们看到的建筑、房子在小孩眼中就是“家”的概念,同时“房子”应该是很安全的,但在地震来临的那一瞬间,建筑,成为了需要逃离的对象。

第一次来北京(1988年)
这是我小时候的一种经历,当时也只有七岁,有一种特别真切的恐惧感。人,就像动物一样,虽然是自然界最高级的生灵,那一瞬间你也要选择逃命,而危险也是无法抗拒的,在地震面前,人根本没有抗争的可能,“人定胜天”我从来就没有相信过。所以,这一段经历我觉得是跟城市和建筑有关系的:大自然的力量,人对自然的感受以及人在大自然面前的那种渺小,那种无助的感觉,刻在我的思想和记忆深处,对我产生着潜在的影响。
因此,我认为:建筑的安全非常重要。另外,它也是一种相对的安全,是一种需要在大自然力量的基本逻辑之下建造的相对安全,对人来讲,那是一个庇护所,需要给人提供这样的一种安全感,但是,它只是在大自然力量控制之下的相对庇护。
上大学以前,还有一件跟地震有关系的事情:那是高三的暑假,我参加了一个我们县里组织的“地震知识竞赛”,应该是1987年。地震过去有10多年的时间,其中一个题目是“要分析身边住的房子”,从抗震的角度,房子的安全性如何或者它有什么样的特征?我去观察我们老家的房子,发现其中一个很巧妙的结构,房子看起来是由砖墙维护起来的,但实际上它不是用墙来承重的,而是由木柱和木梁来承托屋顶。

天大校园(1989)
后来,我才知道这叫“墙倒屋不塌”,我,跟我爸爸一起做出了自己的分析,这个房子是能够适应地震的,墙是相对独立的,若是墙有裂缝了,“墙”被晃倒了,屋顶还是存在的,还是可以支撑着让整个房屋不会塌掉,依旧能保护人的安全。
这是我小时候不太了解建筑的时候,也是学习建筑之前对房子的一些简单认识。
“上房顶”是一个很有意思的事情
登高望远,可见远方的房子、院子和田野
我们家里的房子是典型的“河北民居”,并不是特别陡的坡屋顶,而是一种平屋顶和坡屋顶的结合,还是挺巧妙的,它是很平缓的、带挑檐的平屋顶,上面相当于是一个水泥的保护层,下面是普遍存在的民间屋顶的做法,可以保温和防水,防水的主要材料是水泥砂浆,上面会用石头把它砸实。
我记得房子快完工的时候,好多人会站在屋顶上用大的卵石砸压水泥屋顶,其实,就相当于是要把水泥压实赶光,起到更好的防水作用,也可以保护整个屋顶构造。屋顶相对平缓,当地的雨水量也没有那么多,有坡度能排水即可,不需要那么陡的坡屋顶;相对平缓的屋顶也有一个实用的用途,就是可以晒粮食。
所以屋顶是可以上人的,小时候“上房顶”是一个很有意思的事情,可以登高望远,能看到远处其他家的房子、院子、田野,跟在房子下面的小的视野完全不同,可见的视野及心里的感受也更加宽阔了。

部院实习期间与建筑师们游白洋淀(1990年)
选择建筑,高考后要报这个专业的时候,老师和朋友们都觉得这个专业挺有意思,也比较适合我。那时候还要分文科、理科,但我自己,其实还是有一种“从文的愿望”,小时候我曾经想要当个作家,后来选择了理科,那个方面的愿望也就被压制了。所以,建筑对我来讲,可能是两个方向的融合。
选择天大,可以选择一个我喜欢的专业
把自己放进“建筑里面”
选择学校时,其实对天大(天津大学)还是有所了解的,有一些学长已经选择上了天大,回来之后也给我推荐天大,天大的建筑系很不错,我当时的考试成绩排全县第一,好像报清华也是可以,但并不能像天大一样,可以选择一个我最喜欢的专业。
在天大四年的本科学习,对我而言,是一个让建筑变成兴趣的过程。建筑和设计,让我觉得不管怎么投入都觉得很有乐趣,这个很重要的。

天大设计教室画图(1990年)
大二开始真正去设计一个房子的时候,过程是很奇妙的。原来大家居住的或者工作、学习的房子,是被我们这样的一些人给设计出来的,通过建筑师的想象,按照自己的意愿设计出来,像家琨(刘家琨)说的:是“造物”一样的过程。当然,上学时期肯定还没有真正意义上的“建造”,但这已经是自我与建筑之间从无到有的一个过程,即便是在纸上,也是在通过自己的构思,把原来没有的东西创造出来。
另外就是表达方式,比如:把房子分解成平、立、剖、还有透视图,透视图是另外一种给别人呈现出你想象中的建筑的方法,平、立、剖,是让房子精确建造出来的基础,这种很科学化的、有逻辑性的工作方式,是我喜欢的。

大学二年级小住宅设计(1988年)
画图,是建筑从无到有的一个过程性传达方式,分别对应了理性和感性,这也跟自己在理科和文科两个不同的愿望有了对应,我觉得在画图状态中的“我”是两者合一的,我既不喜欢完全不着边际的那种创作,也不喜欢完全百分百逻辑性地科学化分解建筑的状态,两者在一起共存的状态是比较接近我的内心,建筑,恰好能够满足我的这样一种愿望。
建筑学
需要一个传“道”授“业”的经验认知过程
在天大上学的过程,老师们的影响很重要,建筑,始终需要一个师傅带徒弟的过程,这里面有传承,也有“解惑”的经验。
在我的建筑启蒙阶段,有两位老师“一老一少”:一位是黄为隽先生,一位是青年时代的周愷老师,他们建立了我作为建筑师的基本构架,也给了我一种做建筑应有的格调,或者是建筑设计应该有的一种基调,这段经验对我后来做建筑“有着根深蒂固的影响”,相当于一个小孩刚出生,受到父母的影响是一样的。
黄先生很厉害,他曾经在新疆的设计院当了二十年建筑师,然后,又重回天大当老师。所以他对建筑可以说门儿清,不仅设计过很多房子,也盖过很多房子,所以,他能把事情讲得清楚、易懂,比如:我们常见的小住宅里的壁炉是怎么工作的?壁炉的原理是什么?它不仅仅是平面图里的一个构图或者空间里的一个物体,它怎么取暖?烧火怎么烧?怎么把下面的客厅和上面的卧室串起来,并与厨房的烟道结合在一起?那些细节的分解与功能的串接,他都会从专业角度解说得非常细腻。

李兴钢参加天津市大学生设计竞赛图纸(1990年)
他的草图画得极好,每一幅草图是一幅完整的画,其实也是一个建筑作品。草图的引导,可以满足学生对老师专业性的一种期待,既有技术上的经验,也有建筑内在精神的表达。好老师都会有一种自身的人格魅力:黄先生既严格又循循善诱,慈祥之处又在有专业方面的要求,这就是最好的老师,既对你有鼓励,有引导,同时也有专业性的要求。
周愷老师,那时候他是刚毕业留校的小老师,他非常有活力,有创新力,草图风格跟老先生画的不同,有他自己的一套东西,所以,也非常受我们这些弟弟妹妹辈儿学生的拥戴。当然他人也很好,有一种“谦逊、淡然”的人格魅力。记得当时是黄先生带我们这一列的10个学生,周老师带隔壁那列10个学生,但我们之间互相都会看老师们改过的草图,每一次都是他们一老一少两位老师,各自10份草图讲一遍之后还要带回去,等到下次课再带回来,两位老师都根据同学们的设计改了一套草图,而且都是工工整整 ,让大家无比钦佩又从心里喜欢。
草图的对碰和修改,既有设计又有表达,最重要是对学生的引导,“顺应学生的构思”,并在此基础之上给予一种提升。
尽全力盖出一大批好房子
回馈老师们的情感与情怀
那个时候,对“模型”并不是特别强调,“图”会非常重要,天大的老师们也有非常好的“样板”,草图阶段有样板,正式的作业图也要求老师们“做样板”,这就要老师先画一套图,然后再让学生以此为参照标准去做自己的设计,所以,这也是一种非常有效的体现“师傅带徒弟”的方式。黄、周两位老师对我来讲都是非常重要的、永远要感恩的老师。
后来又遇到研究中国现代建筑史的邹德侬先生,一方面他对中国现代建筑史的研究应该是开创者之一;另一方面我觉得是他有“历史的意识”。
毕业的时候担任建筑系主任的邹先生在毕业纪念册上的留言,对我非常重要:“盖起一大批好房子来”。这实际上是一种期待,也是老师的要求,而且一定要是“好房子”,对于他这样一个研究建筑史的人来讲,建筑一定是要经得起历史考验和评价的。然后,还要“一大批”,“要盖起来”,而不是纸上谈兵,这里面的含义特别重要。后来每当回想起这句话的时候,时常会对照自己的工作:到底自己盖了多少个好房子?是否是能够“(在历史上)留得住”的好房子?好房子,就是要对得起历史,要不辜负先生的这句话。


本科毕业设计图纸和模型(1991年)
大三的时候,邹先生带我走进了人生中第一次“设计现场”:那是一个大跨建筑——体育馆的课程设计。我当时做出来的体育馆结构方案,自己觉得还比较酷其实肯定是幼稚的。
这是一个大跨的网架结构,只用了四个点支撑,存在一些结构上的难度和不很常规的做法。当时邹先生居然带着我去找了天大建筑设计院的结构总工程师——凌总请教,然后说:这是我的一个学生,正在做体育馆课程设计,你给他指点一下结构。直到今天我都觉得这是不可思议的:仅仅一个大三学生的课程作业,居然值得学院里的大教授去找设计院的总工给出指点!但邹先生并不觉得这个东西是过分的,或是多余的,我觉得这是老师的情怀。
聂兰生先生和彭一刚先生,对我后来的职业发展起到非常大的作用。我们那一届的时候,两位先生已经不带本科生的课了,但我有机会跟着周恺老师,辅助彭先生和聂先生做一些他们主持的建筑理论研究与设计研究室的项目,所以,就跟他们相识了。他们对我有非常多的关照和提携,包括参加学生竞赛、找工作、实习、上研究生等等,多年以后我又成为彭先生的博士研究生,这些对我在大学的后半段和大学以后的整个工作和学习的道路选择,有很大的影响,这些先生们最大的特点就是他们都是为人师表的典范。我非常幸运,整个求学受教育的过程都有这么多老师们良好的教导、影响和提携。
就是要盖房子
因为出国就盖不了房子了
毕业的时候,我并没有强烈的出国愿望,虽然当时也有身边的朋友和同学选择了出国,当然这可能是我那时候对更大的世界的视野和看法还不够。直到1998年,有机会去欧洲几个国家旅行的时候,深刻感觉到那完全是另外一个世界,非常精彩,可以跟当时的中国形成一种鲜明的对照。最初没有强烈的出国愿望,也许是受到邹德侬先生那句话的影响,我那时候最大的愿望就是要盖房子,因为出国就盖不了房子。

法国学习期间旅行,维也纳(1998年)
我清楚地知道在国外要有盖房子的机会肯定更为不易,那时候我有一点跃跃欲试的感觉,一心想盖房子,后来研究生也放弃了,就直接工作了。
选择工作时,我已经知道中国建筑设计研究院(当时叫建设部建筑设计院),方向上很明确。实习的时候我是被聂先生推荐到部院,跟着崔总(崔愷),他一直带我,所以,崔总相当于是我离开大学校门走向职业道路的新起点的一位老师。他跟在天大的老师是很不一样的,是一位非常职业的高水平建筑师,所以,三年级暑假期间在部院的实习,对我影响非常深刻。
我参与了两个很重要的项目:一个是崔总他们竞赛赢得的山东石油大学的图书馆优化设计,另一个是当时外交部办公大楼的设计竞赛,我在其中做相关的辅助工作,设计竞赛基本上是帮着画透视图,但我很珍惜这些参加项目的机会,我始终觉得:建筑师的实习并不见得你非得要参加并一定做个什么完整项目出来,这个是次要的,因为通常实习时间都很短,不可能完整、系统的做出多少工作,最重要是通过实习能够对建筑师这个职业的工作状态有一个相对完整的认识。
实习过程中,我很喜欢设计院里这些建筑师的工作状态和生活状态,他们是一个很有朝气、也非常活跃的团队。崔总那个时候刚从华森公司回到院里工作,所以,他带着当时深圳、香港那些城市中更具开放性的视野回来,对家里这些建筑师们有很大的影响。我每天上班都觉得很有意思。记得那时候北京因为节电,每周二要停一次电,停电就没法工作了。但我们也得来上班,崔总就带着我们去附近紫竹院的北京图书馆看书、看电影,骑自行车过去,中午吃个酸奶面包,在那边待整整一天。北图环境很好,又是我们院为主设计的,所以,待在北图也是对前辈设计的空间环境的一种认识。总之,这段实习经历,让我对建筑师的工作和生活状态充满了向往。所以,我本科毕业的时候,本来是准备读研究生的,但因为种种原因没有读成,也就非常肯定地来到部院工作了。

李兴钢与崔愷在内蒙草原,呼和浩特(2002年)
后来的经历有点“阴差阳错”,我本来一心希望跟着崔总,进到他们一所工作,也能跟其他实习时熟识的师兄师姐在一起,结果,后来因为一些:现在想起来挺偶然、但或许也有某种必然性的原因,我没去成一所工作,而是去了四所,那是一个初创的设计所。1991年整个部院各个专业加在一起也就300多人,初创的四所很需要新的员工加入,应院里的要求我也就自然加入了。
所以就是这样,当时出国的愿望不强烈,因为如果我特别想出国的话,也是可以出去的,但就是没有想过那个时候要出去,其实还是有一点小孩那种盲目的自信,有一种内在的执拗的东西,想要满足自己最重要的愿望:就是到我心仪的设计单位,然后设计房子。
那时候做出的很多选择,现在想起来都是人生重大选择:没有读研究生,是我自己的决定,没有找前辈商量,如果我读了研究生,就可能会留校当老师,按我这样的性格,不太喜欢随意改变自己的工作状态,那就极大可能会当很多年的老师,后边会怎么样就很难说了。
到了设计院之后,我想进一所没有得逞,被安排到了新创建的所工作,当时我有点不太高兴的,但是后来回过头来想,恰恰因为它是一个初创的状态,所以也带来了机会和压力,使得我不得不承担一些责任。没有像崔总这样有经验、我又信服的老师在创作层面和工程技术上的日常引导,我就要自己学会更早的独立工作。
职业的开始
是一个带点“完全野生”状态
大概是1991年底,我自己独立负责了一个工程,是山东德州医药管理局的三栋高层住宅,还有一部分商业,整个项目体量很大,而且甲方要求也很高,这个项目让我进入了一种特别投入的创作状态。
应该1993年四、五月份就基本建成了,差不多两年不到的时间。当时领导带我去山东出差,基本上都是我来汇报方案,如果是现在的话,肯定得有一个更有经验的人带着我,但那时候没有别人,从方案到甲方认可审批再到施工图设计,我经历了全过程的设计实战,虽然我还不够资格签工种负责人,但建筑的全过程图纸包括施工图都是我画出来的,这两年时间我才真正意义上完成了一个建筑师的全过程工作。

北京部院工作(1994年)
这个过程中,我是有忐忑的,但部院是一个非常有传统有历史的设计单位,如果有相关工程上的问题,你都可以找到相关专业的人获得答案,还有之前的图纸做样本,“照猫画虎”,总不会出太大问题。所以,基本的工程技术层面有各种“前辈们的经验”可以请教和参照,在创作层面上我可以自己发挥和推敲,当然肯定也是在当时自己视野决定下的做法。这个住宅的设计中我学习参照了很多安藤忠雄的细部处理手法,一心不想把它做成常规性的集合住宅。记得画每一张图都非常愉快,周末加班也一点都不觉得辛苦,一边唱着张雨生的歌一边趴在大图板上画图,项目开工之后第一次去现场,也是特别激动。
我记得周恺老师跟我说过:他第一次到他自己的建筑工地现场,第一眼看到建筑矗立在大地上,那是一种无法形容的感觉。
我确实体会到了那种感觉,虽然只是3栋高层住宅,那种建筑物质性的真实感——原来它还只是“纸上的想象”,通过做施工图已经对它的每一处都非常熟悉,但走到真正的建筑空间之中,我能够体悟到“那种非常物质性的呈现感”,也能体验到家琨说的那种“造物的愉悦”。
当然,肯定也有很多问题,我第一次发现真正的施工和施工图上的清晰表达是两码事,包括跟政府部门的官员、项目甲方、施工单位打交道的经验积累,从那时候就已经开始了,“这几年的时间”基本构成了职业建筑师需要面对的一些元素:交流、沟通、协调。甚至现场经验的反哺,比如现场有可能出现的一些问题在未来我要怎样去规避它,或者甚至巧妙地利用它。但在项目类型上我们没得选择,我们那时候没有这种选择的想法和可能性,基本上是有什么项目就接什么项目,接到一个项目就把一个项目做好。


北京兴涛会馆草图与模型(1999年)
我相信不论是住宅或者是商业项目,都可以做出文化感来,只要足够投入,不一定非得是文化建筑,才能做得出“文化的品质”,其他类型的项目也都应该这么投入身心去做,从最开始做项目直到现在,这是我一贯的原则。
不同项目上需要思考的着力点是不同的,住宅,跟人日常生活居住相关的内容很重要,商业建筑有它的商业特性,有盈利的需要、造价的控制,但它们本质上都是“为人在建筑中的使用等行为提供服务和关照”。我从来不太挑剔项目的类型、规模的大小等等,这些都不是建筑师做不好设计的理由。

北京兴涛社区联排住宅(2000年)
直到1995年,我才开始自己真正独立主持项目,有资格签“设计总负责人”的字。项目是位于北京大兴的兴涛社区,是一个房地产开发类型的普通住宅小区,但在这个项目里我完成了一次对居住小区形态和空间的理论化探索,还写了两篇论文,一篇发表在《建筑师》,一篇发表在建筑学报(是第一次在学报发表文章)。
另外,每个小区里面都有个配套学校,我把这个配套学校当作“一个独立的公共建筑作品”来对待。项目在1998年完成,整个小区体量非常大,有三十多万平米,我也干了很多时间,2000年北京兴涛学校获得了一个全国优秀工程设计银奖,这到现在都是很难做到的。
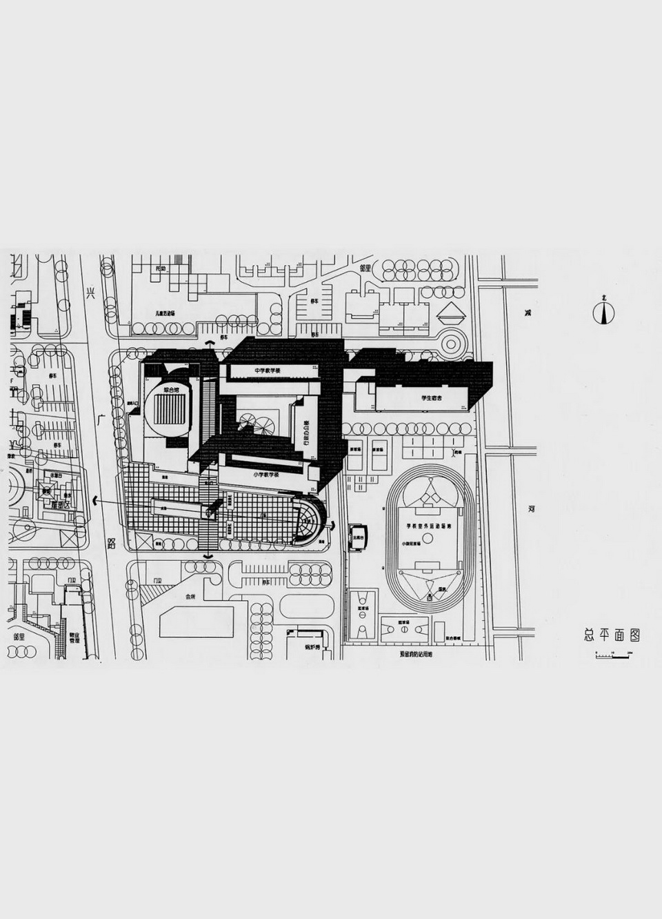
北京兴涛学校总平面图(1996年)左,北京兴涛学校“街厅”(1998年)右

所以,我并不把任何一个项目当成普通的项目来对待,我也接受任何一个看似普通的项目。
本文图片由李兴钢工作室提供
-End-
编辑 | 与鹿
校对 | 与鹿
投稿邮箱
53963608@qq.com
