导语:
条形体量是建筑形体中最为常见的一种形体元素,根据同济大学建筑系所编的《建筑形态设计基础》一书中关于建筑形体的构成元素(大小,形态,位置,色彩,肌理,方向)。形体是一种给人非常直观和力量感的建筑的重要视觉构成部分,所以对于较为容易操作的条形体量来说,其变化的形式也是非常之多。以下通过几个案例来一起探索一下建筑在条形变化上的更多可能性。
目录
1.武汉朗廷元著生活方式体验馆
2.混凝土缝之宅
3.四川美术学院虎溪校区图书馆
4.莫干山叠云度假酒店
5. 意大利山上餐厅
6.湖西市小住宅
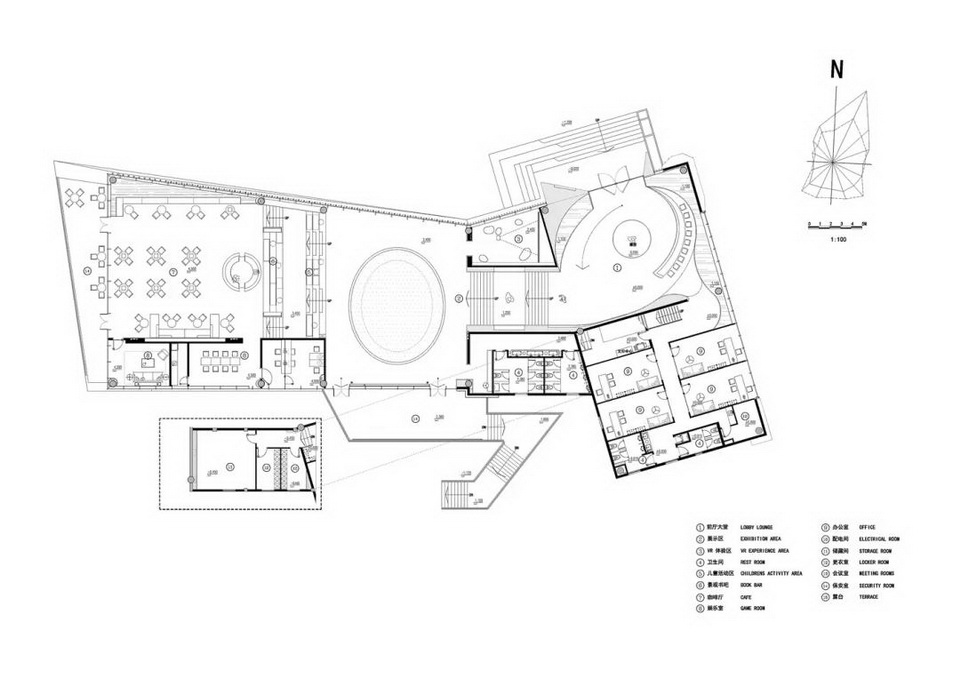
#01 武汉朗廷元著生活方式体验馆
功能:商业
地址:中国湖北武汉
面积:1403㎡
建筑设计:成执建筑
案例来源:archdaily.cn

项目介绍
项目位于武汉太子湖北路和海棠路交界处 ,东临江城大道,南侧为太子湖,西侧为高尔夫球场,西南侧的景观资源充足。


点评剖析
该建筑在形体上具有强烈的张力,无论是端部的屋檐或是局部的架起与转折,相比于场地周围其他的建筑来说,本建筑在形体上的确是具有了某种雕塑感,毫无疑问地成为了场地的视觉中心和焦点。不同于我们一般印象中的条形体量,这个建筑的“条形感”似乎并没有那么强烈,这是因为该建筑在形体上利用了外包的室外平台和夸张的屋顶形态,弱化了条形体量中的直角边缘,但是从基本形体归类来说,它仍然属于条形体量的范畴。其中有几处的体量操作手法值得注意,第一是(见俯视图)形体的转折与局部扩大,本建筑在条形的末端对体量进行了局部的放大处理,开阔了视野的同时,也增加了端部的重量感,这个是平面上的操作;至于剖面上的操作则是本案例最为精妙的一个处理,它在末端进行了抬升,使得体量末端局部架空了起来,这个操作更是增加了体量的力量感与雕塑感。架空的同时,在条形两侧外架室外露台,配合夸张的屋顶,整个建筑的形体便被塑造了出来,犹如在雕刻大理石般,每一刀均赋予了形体生命和灵魂。


(平面图)
#02 混凝土缝之宅
功能:住宅
项目地址:中国江苏南京
面积:270m²
建筑设计:张雷联合建筑事务所
案例来源:archdaily.cn

项目简介
张雷工作室以创新的手法使用传统的建筑材料――砖头,设计建筑闻名于世,他们最近设计了这栋混凝土住宅:混凝土缝之住宅。这个住宅位于中国南京市,周围的房屋都始建于20世纪20年代,所以它的风格同周围房屋截然不同。


点评剖析
这个建筑是一个比较经典的小型住宅
入口:这个建筑的入口很有趣,实际上它是完全从建筑的主体上突出来的,同时又利用了一个折板,形成了灰空间,稍稍地打破了整个形体的呆板也强调了入口的存在。
立面:其侧立面的Z字形缝隙与五个大小不一的窗户是整个建筑最丰富,变化最多的地方。首先,Z字形的缝隙,不仅存在于立面内,也延伸到了屋顶,成为了一个突破二维平面的立体元素,这种手法常用在过渡两个平面之间,用于加强视觉联系;五个窗户的尺寸和位置应当是经过了反复调整与琢磨后的结果,丰富而不杂乱,有张力但很均衡,这就涉及平面构图的相关原理和知识了,学有余力的读者可以参考《建筑形态设计基础》,进行进一步的深入学习。
屋顶:屋顶有一个狭长的采光天窗,给室内提供充足的自然光线,也打破了屋顶的对称与呆板,算是一个比较局部的小手法。
在这个建筑上,我感觉设计师的思路是这样展开的,先想出了一个基本的体量(矩形加三角形截面的条形盒子),接下来则是想方设法地去打破这种对称,比如入口处不仅打破了山墙面的对称,也突破了体量的矩形空间限定;立面上则是利用狭缝天窗和五个大小不一的窗户去打破立面的对称,不仅如此,立面的狭缝还延伸至屋顶,又近一步把突破向前推进。这种由对称体量出发又通过各种手段打破对称的设计思路造成了一种局部的矛盾与整体的和谐,使建筑拥有了丰富的可阅读性,既赋予了建筑一个中规中矩的基本型,使得其在场地中不至于过于突兀,同时也在此基础上尽可能地去突破和探索更多的可能性。写到这里,笔者不禁想起了那句话:“建筑是复杂且矛盾的”。

#03 四川美术学院虎溪校区图书馆
功能:图书馆
面积:14260 m²
建筑设计:汤桦建筑设计事务所
项目地址:中国重庆
案例来源:archdaily.cn

项目简介
四川美术学院虎溪校区图书馆的设计立足于地域传统的乡土性,取材于重庆地方随处可见的建筑原型,如砖窑、仓库等,以简洁整体的形式屹立于山地中,与校园已形成的小体量分散布局的建筑物形成对比。


点评剖析
这个案例与上一个混凝土住宅在截面上有相似之处,但不同的是,由于本建筑为一个较大体量的公共建筑,在建筑的规模和尺度上是不同的,因此这个图书馆在上墙面上的变化自然就丰富得多。两个山墙面,其中一个是作为入口,连接校园道路,另一个则是面向湖面。面向学校道路的山墙面保留了原始的轮廓表皮,在内部采用了虚体量,形成了较大的灰空间,这种保留原始体量轮廓,内部体量后退形成灰空间是处理入口的一种常用手法。另一个山墙面,手法上要相对含蓄一点,基本保留了原始的界面,但也在既有轮廓的基础上形成而二次轮廓——矩形,增加了层次感。

#04 莫干山叠云度假酒店
功能:酒店住宿
面积:600㎡
地址:中国德清莫干山
建筑设计:ZW建筑设计工作室
案例来源:gooood.cn

项目简介
民居群,整个村落都建在一个狭长的山坳中。从自然环境到地理位置都得天独厚。原建筑建于上世纪80年代,砖木结构的老房子早已破败不堪,因原建筑与边上民居是连体建造,邻居也都住在里面,而业主希望对其推倒重建。

点评剖析
接下来讨论多个条形体量之间的关系。对于本建筑案例,多个条形体量交错堆叠的手法是较为常见的,整个形体的构成分为四个元素,两个较大的方盒子和两个条形体量,四个元素相互交错,在这之间形成了丰富的灰空间,这种灰空间往往会作为酒店的观光露台或是室外餐厅,同时位于一层的灰空间则可以作为入口。这样的操作手法一方面解决的酒店的基本功能,同时也让酒店自然而然地形成了酒店的入口灰空间。

#05 意大利山上餐厅
功能:餐饮
地址:Obereggen, Alto Adige, Italia
面积:1500m²
建筑设计:Peter Pichler Architecture
案例来源:gooood.cn

项目简介
Peter Pichler Architecture与Arch. Pavol Mikolajcak在2015年意大利的一场设计竞赛中拔得头筹,他们合作设计了一间位于多洛米蒂山海拔2000米高处的餐厅。建筑位于Obereggen的通往滑雪场的Oberholz缆车站旁,主要功能为餐厅。


点评剖析
本案例的形体介于单个条形与多个条形之间。该建筑位于雪山寒地,风景绝佳,建筑师借由山地走势,由单个体量出发,舒展为三个条形,犹如雪地中的掌印。同时这末端的三个条形也呈现出一定的波动扭曲和变化,十分协调而不显僵硬。由于末端的三个体量的存在,因此就形成了三个不同的欣赏自然美景的角度,进一步扩展了餐厅的视野范围,使得就餐空间能够有效的融入自然景观,给顾客带来难忘的就餐体验。

#06 湖西市小住宅
功能:住宅
地址:Kosai-shi Shizuoka JAPAN
面积:198㎡
建筑设计:Shuhei Goto Architects
案例来源:gooood.cn

项目简介
这座小房子是一组南北向的长条形体量的组合。为了让光能够从多个角度照射到房子的背面,建筑师让体量之间彼此错落,形成了一个非常有特点的外形,看上去像是4座并列的小房子。错落有致的立面有相当的尺度感,又与周围的建筑、道路、树木相得益彰。一楼的堂屋从二楼南侧的内阳台采光,站在这里还能观赏阳台上的植物。

室外图


点评剖析
这个住宅可能是本期的建筑案例里面面积最小的,但是构成的条形体量却是最多的,一共有四个。四个条形体量的长度,高度,宽度都不相同,但无一例外都在山墙面上开有小窗户,也算是从某种程度上统一了立面的元素。建筑的主入口开在两个条形体量构成的凹陷空间里,也稍微阻隔了城市的喧嚣,沿街立面基本处理的比较实,可能是出于隐私和隔音的考虑。对于这个案例,笔者认为值得学习的地方主要是如何均衡地组织四个长短高度都不相同的条形体量,和立面在相同构成元素下的不同变换。
总结:
虽然表象是复杂的,但本质的模式是可以归纳的,笔者始终认为,对于建筑学这门包罗万象,体系复杂的类通识性学科,一个很重要的学习思路就是简化与归纳,若缺乏有效的归纳简并和抽象提炼的能力,很容易产生信息过载——即抓不住核心与重点,使积累停留于形式,难以内化成为自己思维的一部分。只有将积累转换为自己思维的一部分,才能在输出的时候真正地使得自己的积累能够外化为具体的进步和成果。很大一部分的同学在学习案例时会进入“只顾积累,不顾整理总结”的状态,结果就是案例抄绘了一大本,实际设计水平提高十分有限,其原因就是没有将积累的内容进行提炼拆分,嵌入思考方案的思维,只做案例的复印机,却从不认真思考“为什么这样设计”,这种学习上的坏习惯要尽可能避免。如果有其他案例学习上的问题或者对本文的任何建议,欢迎在文末留言,与笔者一起交流。
-End-
编辑 | 与鹿
校对 | 与鹿
投稿邮箱
53963608@qq.com
