非常感谢 小印帆的笔记本 授权优优课分享以下内容
【学员优秀作业】

【案例图片】


项目:东梓关村民活动中心
地址:浙江,杭州
建成时间:2017年
建筑面积:686.6sqm
项目团队:gad · line+ studio
01 知识点延伸
【如何理解现象透明性】
“透明性”、“空间—时间”、“同时性”、“渗透(interpenetration)”、“叠和(superimposition)”、“矛盾(ambivalence)”在当代建筑学著作中,这些词及其他类似的词经常作为同义词使用,我们熟悉其使用但很少分析其效用。透明性分为以下两种
物理的透明性:物质的一种固有属性,比如玻璃幕墙

现象的透明性:组织(organization)的一种固有属性,柯林·罗(Colin Rowe)撰写的《透明性》一书对该内容进行了详细说明

乔治·科普斯《视觉语言》:“当我们看到两个或更多的图形层层相叠,并且其中的每一个图形都要求属于自己的共同叠和部分,那么我们就遭遇到一种空间维度的矛盾

▲ http://www.iarch.cn/thread-27283-1-1.html?from=message
02 结合案例
东梓关村民活动中心位于富阳东梓关回迁农居以北,新老村落交接处。项目作为东梓关村民活动的公共场所,以本土地域为独有文化背景,努力构筑村民共建共享的“村庄活力源”
本文从该案例极具地域性特点的整体造型切入,对于其背后的空间操作手法进行重点阐述,同时分析案例的双重结构体系,从大小空间嵌套逻辑这一主题下,对于其背后的空间透明性现象进行解读

【整体外部形态】
A
”连续屋顶“
案例的整体造型最大特点即连续坡屋顶。连续坡屋顶本身就是中国传统建筑中非常重要的一个语汇,如姜文电影《邪不压正》的多组镜头,都是取经在传统四合院连续的坡屋顶组成的老北平旧城肌理,呈现出独特的中国美学意境


▲ 东梓关村民活动中心/gad
这种元素不单在影视作品里面被借用,近几年的建筑领域也能经常看到这个语汇,比如我们的这个案例,再比如隈研吾的国美民俗博物馆和王澍的水岸山居,都借用了连续屋顶的语汇

▲ 国美民俗博物馆/隈研吾

▲ 水岸山居/王澍
B
”聚散·黑白“
案例通过一个连续的屋顶统领全局,形成集中布局,和周围散布的民居区分开。颜色上它也跟周围的民居建筑通过黑白对比区分开,使用青砖和木构,和民居住宅的白色抹灰进行区别,强调公共建筑的标识性

▲ 总平面肌理
同时大家看这张图,两边建筑的界面处理上,民居这边是实的墙,案例这边是虚的空间,这种虚实的对比就进一步强调了这个建筑的公共属性,它的空间跟它的建筑性格是吻合的

C
”生成逻辑“
建筑处在联系新村和老村之间的位置,村民日常活动的流线依托于这条轴线产生

▲ 新老场地关系
建筑功能上,这边是停车场,村民活动中心靠着村民通过性空间进行布置

▲ 整体功能划分
在红线内,设计将大块的体量拆分为较小尺度的功能单元,可以看到这些单元在尺度上也跟周边的村落肌理比较接近

▲ 功能体块置入
将这些小体块通过空中连廊进行联系,体块上端形成公共的露台

▲ 功能体块联系
置入框架,为大屋顶的形成做好结构准备

▲ 框架结构生成
最后,整个空间被覆盖在一个连续的钢构屋面之下,外有木材包裹;顶部设置多个天窗,满足采光需要,最终形成了“大屋檐下的微型小世界”这样一个格局

▲ 连续屋顶覆盖
【空间操作方法】
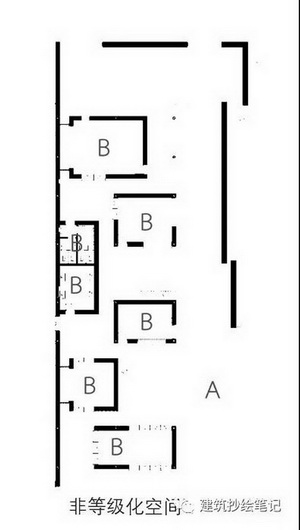
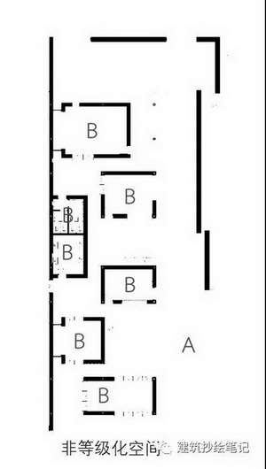
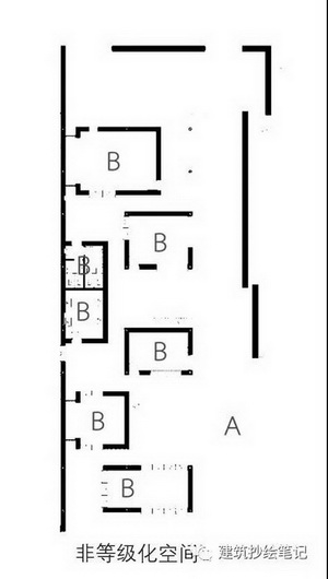
A
”非等级化的空间“
什么是等级化的空间呢?如仇英所作的《汉宫春晓图》,有人把这张图的活动场景所对应的空间序列,用功能泡泡图来进行表示,就能看见这些空间在关系上具有明显的等级区分。这传统的空间等级序列,事实上勾勒出的是古代人的关系和地位,这就是等级化的空间

▲《汉宫春晓图》——传统社会等级化空间
如图所示,ABCDE五个等级,进入B空间需要先经过A空间,进入C空间需要先经过B空间,空间之间形成了明确的等级,这个等级的背后带来的就是功能属性的不同,比如A最公共,E最私密,这就是等级化空间

我们再来看我们案例的平面图,可以看到只有A和B两个等级,A是交通空间,也就是其他所有的功能性空间都是B,等级都是相当的,这就是非等级化空间。在这种空间里面,非等级化的空间模糊了传统建筑空间的序列感和刻板的等级感,等级秩序的消失,界面的均一化,反而使空间成为其中人的活动的很好背景,凸显出人活动的多样性与丰富性,这与村民活动中心,或者城市美术馆的建筑性格是完全吻合的


▲ 适用范围——均等功能体块的空间,如展厅、活动室
采取这种非等级化的空间处理手法,能够在平面上获得很大的自由度和趣味性

B
”路径的不确定性“
这个特点其实和非等级化的空间是经常被打包在一起使用的,本质上也是实现平面自由的一个手法
我们还是对比传统的建筑平面空间和我们案例的平面空间,可以看到在传统的平面布局里面,路径是固定的,被预先安排的,只存在一种可能性的,所有人获得的体验都是相同的

但是在我们的案例里面,路径就存在着无数种可能,交通系统由传统的线性的或者树状组织结构转变为网络状组织结构,甚至变成无规则组织结构,游客或者村民可以根据自己的喜好自由选择路径,以一种公园漫步似的方式完成参观体验,使得建筑获得了公园式的、容纳多种活动、蕴含多种可能性的开放空间与灵活性

C
”用空间划分空间“
对比传统的建筑平面空间和我们案例的平面空间,传统平面空间是利用墙体来划分空间的,而我们案例的平面,把标红色的部分也看成划分空间的“墙”,只不过这些“墙”的内部被扩大,撑开了,形成了内部的空间,也就用空间来划分空间的结果

空间取代墙体围合与划分空间,通过体块遮掩与错置形成空间渗透,人们同样难以形成对空间的整体性把握,空间处于一个不断被发现、感知的过程,与路径缠绕于一起,通过体块遮掩与错置,产生了“迷宫般清晰”的空间特征,具有强烈的趣味性

▲ ”迷宫般清晰“的空间特征——通过体块遮掩与错置形成空间渗透
卒姆托的瓦尔斯温泉浴场,也是有异曲同工之妙的。卒姆托将浴场内部空间操作归为体块单元之间的空间研究, 通过“拉锁原则”(Zipper Principle)对体块单元进行错位布置, 从而形成对空间的挤压与渗透,使人们游离于体块之间的空间转换中。产生了独特的空间交织与形式构成的特点

▲ 卒姆托温泉浴场

▲ 对空间的挤压与渗透
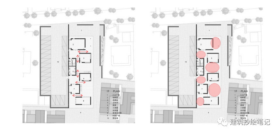
D
”公共空间的营造“
我在图中标注红色的就是灰空间,标注蓝色的是竖向交通。把灰空间和交通空间结合布置,有利于形成丰富视觉效果,产生看与被看的关系

▲ 一层图底灰空间,在灰空间布置竖向交通
二层的灰空间主要是屋顶平台,平台之间局部以空中连廊相连。从棋牌放映、体育活动,到小铺叫卖,生活化的语境被细分为相对独立的小场景,来往的人群可在连通内外的灰空间里自由穿梭、停留,空气、光和自然则在无形中成为公共生活的背景

▲ 二层露台灰空间
横向对比一个案例,就是台湾高雄的卫武营文化艺术中心。其概念来源就是榕树的生长,最后形成了榕树树荫庇护下的空间这样一个概念。所以灰空间也是这个设计里面很精彩的一点

案例平面图里面的功能性空间,比如大小的剧场、展厅,就是所谓的榕树,是实体的树干,而这些空间以为的灰空间,就是它所要营造的榕树下的灰空间。这个做法本身也跟建筑的功能紧密相关,这种大型剧场项目,有演出或者展览的时候,会有很大的瞬时人流,所以对集散的灰空间面积要求极大。因此,他的这种公共空间的营造就形成了这个建筑设计的一个亮点

E
”图底节点的缩放“
这是灰空间处理的一种常用手法。我们来看这个分析图,左图代表的就是比较狭窄的通过性,就是图底的“缩”;右图是比较开阔的公共空间,就是图底的“放”

通过这种一缩一放的节奏变化,就让游客游览过程中,避免产生均质的廊状、纯通过性的交通空间所带来的那种单调和乏味。同时,不同空间的缩放,对应的不同的尺度,也会产生不同的行为和场景效果

比如在小的空间里,人的物理距离可能会被强迫拉近,在大的空间里,集会、看戏、红白喜事等相对重要且人群密集的活动,则可通过依附这些大空间进行演绎

【双重结构体系】
案例使用框架结构和砖混结构。大屋顶用的是框架结构,容易形成比较整体、标识性比较强的磅礴气势

里面的小村居使用的是砖混结构,尺度较小,和村落的自然肌理进行呼应,比较亲切宜人,近人体尺度

这个双重的结构体系带来约束与自由两个方面的空间效果:首先,大屋顶的框架起到约束作用,加强了建筑的整体感,让建筑看起来更具有逻辑秩序

基于这个框架体系,里面的小的功能体块则可以获得一个极大的自由度,无论从平面尺寸还是竖向高度,都可以进行自由演绎。同时,这两个结构互相独立,也可以让屋顶和下面的体块脱开,形成一个轻盈飘逸的造型效果,同时屋顶和建筑脱开的这部分,很暧昧的灰色空间,也带来了一种独特的空间氛围

上述的案例也是采用大屋顶作为语汇的乡村建筑,但是在操作手法上没有将大屋顶和底层建筑空间脱开,就无法实现空间透明性的叠合,而是作为一个建筑整体创造出和我们今天的案例截然不同的另一种空间效果
03 课外知识点
【大小空间嵌套的内在逻辑——现象透明性的营造】
柯林罗在《透明性》这本书里阐述道“在关系空间,能够同时处在两个或更多的关系系统中某一点具有(现象)透明性”。重点在于,具有透明性的这个点,从属于多个系统内

如这张剖面图所示,我所标注的红色部分,其实就是具有透明性的部分,因为它从属于两套系统,既属于小村居所限定出来的灰空间,又属于大屋檐下的空间,正是这两种体系的交叠,让红色的这部分空间产生的暧昧、模糊、多义的感觉,这也正是大小空间嵌套的内在逻辑,大小空间嵌套之后会产生空间的交叠,交叠的部分既属于大空间,又属于小空间,所以大小空间的相互嵌套经常容易营造出很模糊多义的空间特点,其本质就是现象透明性的营造

04 参考文献及案例
【案例】
瓦斯温泉浴场、卫武营艺术文化中心、水岸山居
中国美术学院民俗文化艺术博物馆
金泽21世纪当代美术馆
【文献】
《解读经典》、《透明性》
《乡村公共空间营造与东梓关实践再思考——杭州富阳东梓关村民活动中心》
专访|靳远:“厚度”这个词,差点杀死我又让我重生
-End-
编辑 | 与鹿
校对 | 与鹿
版权声明
内容由 小印帆的笔记本 授权优优课编辑发布
如有转载请联系原作者
投稿邮箱
53963608@qq.com
