感谢 Impactstudio 授权分享以下内容
不知道大家是否还记得前段时间刷屏的“江南百景图”,还记得那些年阴阳师精美的插画充斥朋友圈的时代吗?游戏美术中的场景与建筑景观的设计表达一直息息相关。近两年浮世绘与风俗画风格的设计可谓成为了设计市场上浓墨重彩的一笔,而在建筑、景观的设计市场上相似风格的设计也如雨后春笋般生机勃勃的发展着。今天同学们来跟着小编,对这类风格在建筑景观设计方面的应用有一个具体的认识吧~
01
风俗画与浮世绘的介绍
风俗画是中国古代传统绘画类型之一,是人物画的一种。不同于表达意境的山水画,它是以社会生活情怀为主要题材的一种绘画形式,国内该类型画作中最为人熟知的便是《清明上河图》了。

清明上河图(局部)
至于同类型的浮世绘,也就是日本的风俗画、版画,它是日本江户时代(1603~1867年间,也叫德川幕府时代)兴起的一种独特的民族艺术,是典型的花街柳巷表达民风民俗的艺术,以描绘人们日常生活、风景和演剧为主。

冨岳三十六景(浮世绘发展后期出现风景绘画)
风俗画与浮世绘在图面表达上的共同特征是线条的干净利落以及画面的扁平化,在内容上的特征则是对于当时社会风貌的一种写实性记录。
02
以绘画为参考的设计方式
设计与绘画本身便是相互借鉴相互参考的,至于浮世绘与风俗画这类风格独特而又富有魅力的绘画类型,我们该如何进行参考呢?
2.1 图案提取—廓形提取
通过几何轮廓的提取与概括,主要运用在立面的视线的遮挡上,独具特色。这类设计方式形成的小品、构架巧妙的结合了古典绘画形式与现代简约风格,生动而自然,惬意又舒适,并且结合光效的营造,能形成一种多层次的空间感受。

两种浮世绘几何廓形提取的屏风
通过复杂轮廓的保留带来更加清晰且直观的画面感,建造手法更为多样且有趣,但对工艺要求较高。

左一:复杂轮廓屏风
左二:不同宽度竹片形成图案状的建筑立面
2.2 图面信息提取—构图参考、引入画面主体
通过参考已有绘画作品的构图形式,在造景点与观赏点设置景物、小品等各类元素的位置,形成良好的视觉效果。

构图参考
此外,风俗画与浮世绘中有许多人文生活的场景,通过古典或新中式风格的建筑与构架,规范游客或行人的活动,引人入景,以景入画,形成绝佳的景色。

引入画面主体(规范人的活动形成相应的画面)
2.3 表达方式
近年来各高校毕业设计以及各类竞赛中插画风作品层出不穷,而风俗画、浮世绘这类插画表达风格也深受大家喜爱。除了在设计细节上的风格体现外,图面表达也是一个重点。有别于需要大量素材的拼贴风表达,风俗画、浮世绘这类风格以扁平为主:清晰的轮廓线条、明确的色块、元素的重复、优雅的构图。看似简约的元素经过排列组合形成的画面能够给人带来独有的视觉冲击感。

浮世绘与插画风风格表达
03
案例参考
了解了如何通过参考绘画作品进行设计之后,便跟着小编看一下有哪些风俗画与浮世绘应用的实例吧~
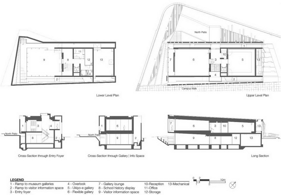
3.1 琦玉水田艺术博物馆
这座占地超过7000平方英尺的建筑坐落于日本的大学校园里,其内部的藏品以珍贵的浮世绘为主,而整体的建筑便选择了与内部藏品相呼应的浮世绘元素进行设计。

琦玉水田艺术博物馆
该博物馆也是校园入口可见的建筑,并且有着大学生信息中心的双重作用,展示校园相关信息。为了满足该建筑双重功能的要求,通过地形的挖填而合理的设计了两个不同通向的坡道,并且这些坡道的尺寸使用于装载和进入。

平面及立面图
琦玉水田艺术博物馆是一个典型的借鉴了浮世绘技法的建筑,将轮廓提取的手法运用到了极致,不仅在室内运用了复杂轮廓借鉴,还在外立面运用几何轮廓的廓形结合自然进行设计。

坡面体块结构
浮世绘的风格在建筑上被转换为浇筑到浮动构造,从而将画廊架在信息空间之上,立面充分利用光槽让人想起了在许多版画中描绘雨水的图形手法。

场地室内部分结合室外的图形概念,利用竹片排列组合,加上彩绘形成生动的浮世绘景象。

室内屏风图案
3.2 隈研吾:长城公社竹屋、根津美术馆
大家都极为熟悉的隈研吾,也将浮世绘的风格巧妙融合于自己的设计中。他喜欢用不同的材料元素构筑平面,提倡建筑融合于周围环境以及氛围之中,强调“自然生长”型。这在北京长城脚下的竹屋以及东京根津美术馆得到了最好的诠释。

北京长城公社竹屋
这两座建筑中共同的“竹”元素,是隈研吾作品的性格,一种源自浮世绘的精神,而他在中国其他作品中对于“砖”和“瓦”的青睐,则是他对于中国传统建筑元素更深刻的理解与思考,保持传统已经不再是复制与模仿外形,而是以诗意的情感融入到现代设计之中。

东京根津美术馆
其实,这种“竹林”的排列方法,是隈研吾设计中的常见要素,甚至可以说是他建筑哲学的重要部分。有趣的是,他的建筑构图借鉴了安藤广重浮世绘的元素,就是在《江户名胜百景》系列之“大桥骤雨”中的“雨丝”,“用笔直的线条描绘的雨”,来创作出如雨丝一样纤细的装饰。

安藤广重浮世绘《江户名胜百景》系列之“大桥骤雨”
隈研吾在建筑设计中大量的运用了东方绘画手法。浮世绘中的散点透视与西方绘画的焦点透视则不同,这种源自中国的绘画方式,在平移中,视觉上感受更加舒适,追寻在运动中随时随地呈现和谐与完美。

东京根津美术馆
这正是日本禅所追求的幽玄。这种禅之美,正如“月被薄雾所隐“”,也如“山上红叶笼罩于雾中”,美升起,而言又止。
不知道这种富有诗意的联想有多少合理性,但有一点是可以确认的:“大桥骤雨”的雨丝是隈研吾建筑设计的一个原点。无论是一“丝”一“竹”,一“砖”一“瓦”,都用间隔承接着“所隐”,隐去了完整,却呈现出一种更高的审美,幽玄之美。
3.3 金城社区统一空间
其实,除了日本的浮世绘风格,中国也有许多民俗艺术被运用在了现代设计中,如下面的这个案例,它在充分利用空间的同时,将居民生活纳入设计考量,引人入景,生活气息浓郁。
在四川,逢过年过节,婚丧嫁娶,红白喜事,都会上演“坝坝宴”的日常。而经历了2008年汶川地震的小石村(现金城社区),大量房屋坍塌,也带走了坝坝空间。

经过震后重建的集中安置,住在“单元楼式”小区里的小石村村民,得到震后慰藉的同时,也失去了以前的“多余”空间。时地建筑工作室这个项目则从公共空间出发,找回乡村消失的“熟”文化。

平面上的折线和立面上的折线放到一起,形成了“横看成岭侧成峰”的姿态
设计师提出:“我们希望不是去发明,而是去发现,去激发场地内在的生命力。我们去发现场所既有的价值和潜质,通过空间设计,留下一个种子、一片土壤,让它自己发生。只有让价值自己发生出来,它才是真正根植于农村。”

生活与务农,生活气息成为设计中不可或缺的一块景色
3.4 Utopia of Splendour
如今浮世绘与风俗画的风格在二维平面上的展示受到了众多当代艺术家和年轻学生的推崇,比如下面这个案例:来自巴特莱特建筑学院(Bartlett School of Architecture)的Freja Bao用风格极为强烈的风俗画的表达形式为大家带来了一个充满幻想与魅力的乌托邦——Splendour。

Utopia-Splendour
Freja Bao 的设计受到了孟元老的《东京梦华录》的启发,根据中国文化的传统元素对处于不同时节的Splendour进行了描绘,整座城市的面貌会随着季节的变化而发生改变,从而构成了既古典又超脱现实的图像。如果真的存在一座乌托邦,Freja Bao认为它应该由四季及其季节的传统氛围来统领。

Splendour—春季
春兰主导了春季的城市,关进鸟笼的兰花悬垂下屋檐

Splendour—夏季
夏竹连成屏障,渔场生机盎然,竹笋与竹叶成为消暑纳凉的食品

Splendour—秋季
秋季,金色的菊花盛放填满海面,人们乘船穿梭于期间,远处满月的倒影熠熠生辉

Splendour—冬季
到了冬季,梅花竞相开放形成天棚,绵延数里与白雪交相辉映
在梅兰竹菊、屏风、纸窗、木船等古色古香的元素之中,Freja Bao也俏皮到加入了一些现代元素,比如那些身着华丽汉服的人,有的拖着行李箱,有的戴着墨镜,有的头套相机,有的手握自拍杆……在古典的氛围中,这样冲突而“不合理”的元素的出现,为画面增添了不少幽默感与故事感。

Splendour—生活场景
丰富的元素排列、明快而清爽的线条、充满故事性的场景构成便促成了这样一个风俗画表达形式作品的诞生。
04
小结
通过这些设计手法的学习与案例的了解,相信大家一定会对于浮世绘与风俗画风格的设计有更深刻的认识。设计本身就是为人服务的事儿,这类风格的设计想必也为你打开了一道如何“引人入景,移景入画”的大门吧。它具有除了可以广泛运用于建筑、景观、室内、城市设计的优点外,也可以使你的设计更加的生动,具有生命力,能够从众多作品中脱颖而出。不妨来动手试一试吧~
-End-
编辑 | 与鹿
校对 | 与鹿
版权声明
内容由 ImpactStudio 授权优优课编辑发布
如有转载请联系原作者
投稿邮箱
53963608@qq.com
