以下文章来源于微建筑日记 ,作者KJ


非常感谢
微建筑日记
授权 建筑小学堂 分享以下内容
(本文已授权,转载请联系该公众号)
往期推送中,小编为大家介绍了建筑中特定空间元素——入口的几种经典操作手法,今天带来的是另一种非常重要的元素——中庭,结合地域性特征的中庭是如何设计的呢? 希望大家阅读完可以有一定的收获。
往期链接
https://mp.weixin.qq.com/s/w5QG5E7_gxKNrHkrVzoS3Q

特定空间元素
地域化中庭
在一个建筑里,中庭空间被用来提供与自然相近相通的场所,同时又与自然带来的不利条件有一定分隔,在建筑空间组合关系中可以起某种枢纽作用。
随着科学技术的发展,中庭空间的布局、构成和风格层出不穷。在建筑处理上,中庭空间常强调一种开敞流动的感受,注重自然元素的引入和利用,诸如阳光、空气、水和植物等。安静舒适的休憩场所的营造也成为中庭空间设计中重要的考虑对象。
而当中庭空间出现在世界上不同的地区,其位置布局、围合方式、尺度大小以及构造用材各不相同,尤其是一些地域主义建筑的中庭空间,往往表现出很强的在地性。本文试图借不同地区的六个建筑案例,通过分析各自的地形地貌、民族文化以及材料建造的特点,反映出特定地域条件下的中庭空间的一般特征。
举六颗栗子说明:
位于中国云南地区的梅里雪山既下酒店和Bodø新市政大厅在享有开阔的美丽山景的同时也均需考虑冬季的保温;
位于西班牙格拉纳达的格拉纳达邮政储蓄银行和中国新疆吐鲁番的高昌故城游客服务中心则需要对强烈日照的消极条件做出回应;
越南岘港的绿色住宅和非洲埃塞俄比亚的lideta市场都考虑了利用中庭空间实现被动式节能和局部的气候调节作用。

地域化中庭
案例合集

目录
01. 梅里雪山既下酒店——云南(中国)
02. 格拉纳达储蓄银行——格拉纳达(西班牙)
03. 高昌故城游客服务中心——新疆吐鲁番(中国)
04. 岘港绿色住宅——岘港(越南)
05. lideta市场——埃塞俄比亚(非洲)
06. Bodø新市政大厅——挪威
面积:1961㎡
功能:酒店
建筑设计:赵扬建筑工作室
案例来源:gooood
项目简介:
项目位于云南省迪庆州德钦县雾浓顶村,其用地属于这个村子的第23户人家。项目前身季候鸟雪山旅馆本身也是对一个48柱木框架结构的夯土藏房的改造。当时用混凝土框架结构替代了原始的木结构,但是保留了夯土墙和平面中心的天井。旅馆建成之后,成为通往西藏的214国道上的重要驿站,也是眺望和观赏梅里十三峰全景的最佳地点。
模型照片、效果图




图片来源于网络





中庭照片 | 图片来源于网络
基础图纸

↑ 建筑一层平面图| 图片来源于网络

↑ 建筑二层平面图 | 图片来源于网络

↑ 建筑三、四层平面图 | 图片来源于网络

↑ 建筑剖面图 | 图片来源于网络

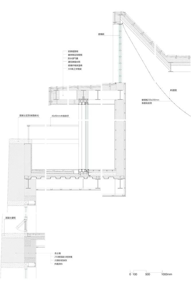
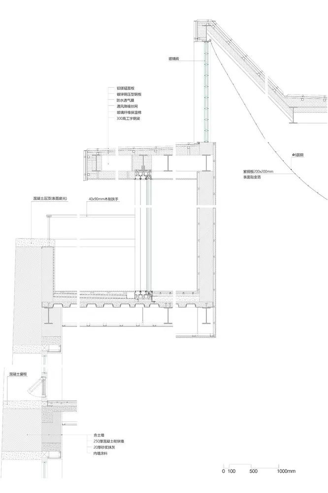
↑ 墙身剖面详图 | 图片来源于网络

↑ 光线分析 | 图片来源于网络
分析+总结

↑ 整体关系 | 图片为作者自绘
整体关系分析
出于冬季保温的考虑,原建筑天井被覆盖为中庭。部分二层的楼板被打掉以改善大堂的空间比例关系;同样中庭地面的抬高也缓解了四层的高度带来的高耸感,并作为图书馆使用。大堂和图书馆空间因此在剖面上联系起来,到达大堂的客人比较容易的被高处的中庭吸引而开始一段向上的空间游历。

↑ 朝圣之路 | 图片为作者自绘
交通流线分析
三段直跑楼梯把地面层的大堂,二层的图书馆和四层的酒吧连接起来。这三段首尾相接的直跑楼梯是通往雪山酒吧距离最短、转折最少的路径,也是形式上最凝练的表达。

↑ 光线的介入 | 图片为作者自绘
采光分析
和天窗相比,高侧窗的光线相对均衡,而且可以避免正午的眩光。在中庭顶部东西两侧设置高侧窗,同时用一个曲面的顶棚,把从两侧进入的光线反射下去。曲面可以把直射光扩散开,这样可以保证中庭的光线均匀而柔和。高侧窗用玻璃砖砌筑,也可以进一步起到折射并柔化直射阳光的效果。

↑ 材料建造 | 图片为作者自绘
材料建造分析
为了营造柔软的悬挂印象,设计师与云南当地的手打铜银工匠合作,用若干片铜板串接制成一张靠重力自然悬垂的“紫铜挂毯”,手工打制的铜板表面有密集的凹坑,也是为了进一步散射光线,让中庭内部通体光明。
功能:银行
建筑设计:Alberto Campo Baeza
案例来源:ArchDaily
项目简介:
格拉纳达是一座西班牙南部城市,以丰富的建筑遗产闻名。建筑师的设计精密但不繁琐,综合但不复杂,简约的空间承载着感官的盛宴。
建筑主体是一个立方的体量,坐落在一个巨大的台基上,其原始的线条和如货架般的外立面流露着温暖的西班牙南部建筑的特性。在南立面,混凝土网格在它表面充当遮阳板,挤压玻璃墙形成深邃的阴影,使得内部的办公室免受强烈的太阳光照。而在内部,一个巨大的中庭是格拉纳达储蓄银行的核心。
照片、效果图





图片来源于网络
基础图纸

↑ 建筑一层平面图| 图片来源于网络

↑ 建筑二层平面图 | 图片来源于网络

↑ 建筑总平面图 | 图片来源于网络

↑ 建筑剖面图 | 图片来源于网络
分析+总结

↑ 整体关系 | 图片为作者自绘


↑ 光的洗礼 | 图片为作者自绘
采光分析
中庭的概念是“光的蓄水池”,具有结构元素的天花构架之间相互作用,十二个捕捉光线的洞口使得光在这里成为一种像水一样可以流动的物质,又如明亮的光剑一般斜插内部,在地面上留下明亮的光斑。

↑ 文化符号 | 图片为作者自绘
文化符号分析
四根直径三米,自下而上支撑着屋顶的素混凝土圆柱具有和格拉纳达教堂立柱相同的尺度,罗马万神庙的穹顶和阿尔罕布拉宫的浴室无疑对建筑师的创作带来了启发。

↑ 材料建造 | 图片为作者自绘
材料建造分析
内庭的立面由来自意大利tivoli的半透明雪花石膏铺满,只在每个单元网格开启一个正方形小洞,傍晚时分,夕阳穿过办公室照亮雪花石的背面,散发出金黄色的光芒。
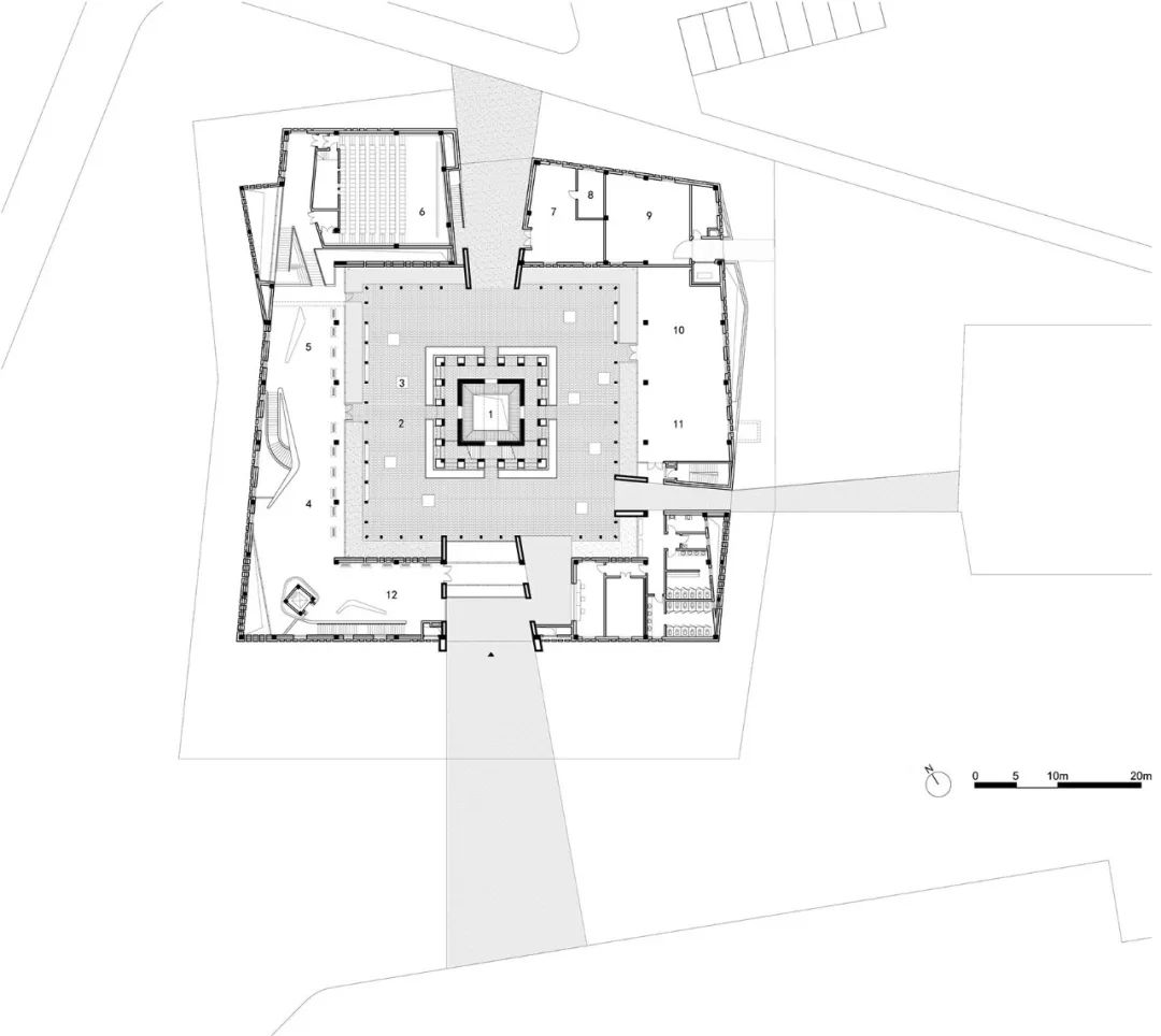
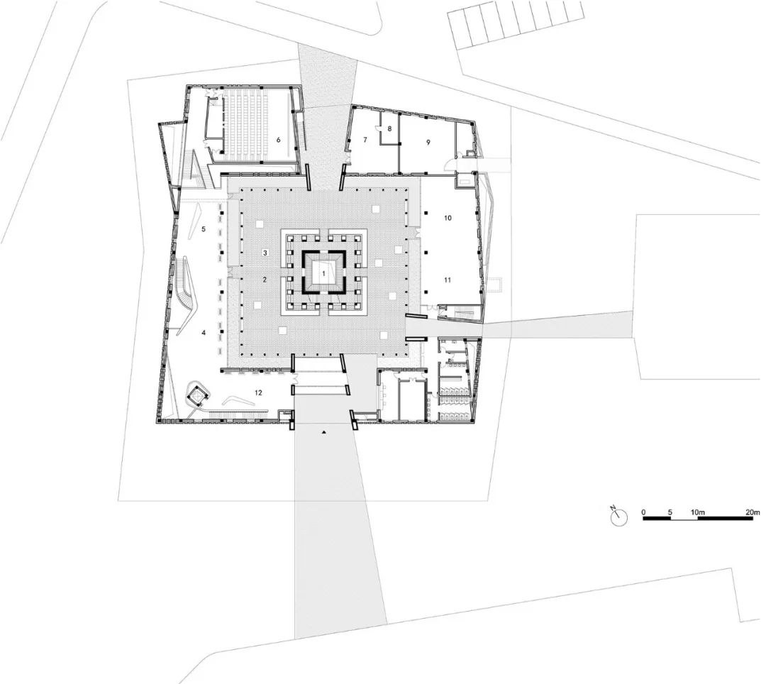
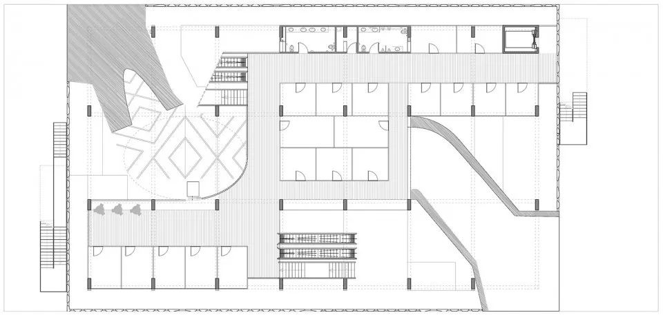
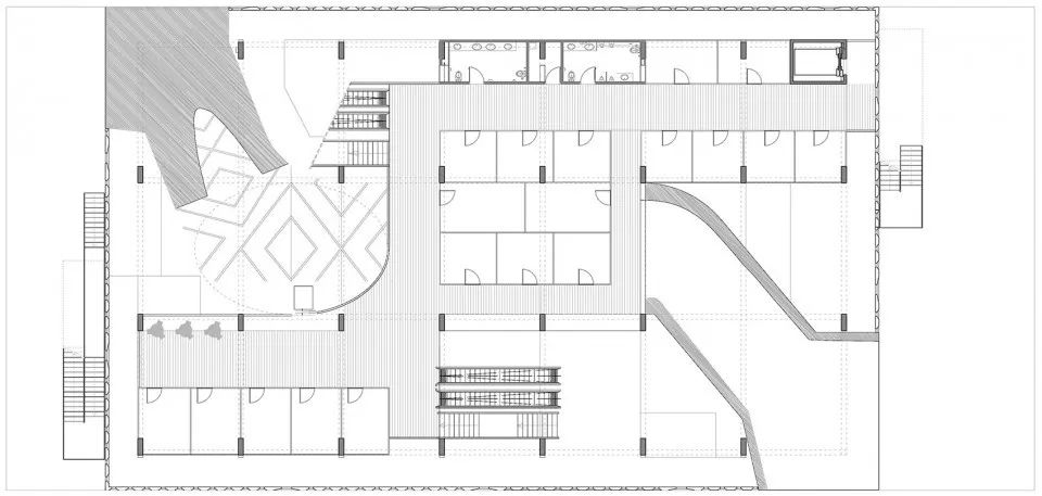
03. 高昌故城游客服务中心——吐鲁番(中国)
面积:4606㎡
功能:游客服务中心
建筑设计:中国建筑设计研究院一合建筑设计研究中心U2
案例来源:gooood
项目简介:
游客服务中心位于吐鲁番市与高昌故城遗址南门的连接路段上。因此,故城与火焰山厚重而荒凉的宏伟景象则成为了整个基地的视觉背景。葡萄藤架,坎儿井,一片炽热的天空,都是对吐鲁番这一特定地点的描述。1000年以前这里曾是丝绸之路上一座重要的城市,随着时间的推移,至今只留下一片夯土的遗迹。在火焰山南侧一片空旷的荒野中,高昌故城以城墙定义了“城”的范围,区分城里城外,为人提供了庇护的场所。
照片、效果图





地形地貌 | 图片来源于网络



整体和细部照片 | 图片来源于网络



中庭照片 | 图片来源于网络
基础图纸

↑ 建筑负一层平面图| 图片来源于网络

↑ 建筑一层平面图 | 图片来源于网络

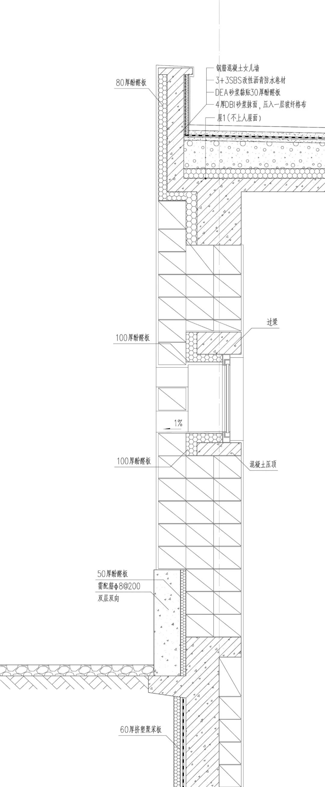
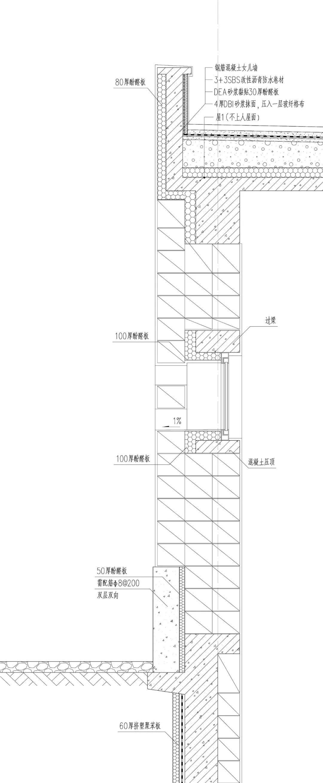
↑ 外墙大样详图 | 图片来源于网络

↑ 外墙大样详图 | 图片来源于网络

↑ 剖面表现图 | 图片来源于网络
分析+总结

↑ 整体关系 | 图片为作者自绘

↑ 佛寺及拱的原型 | 图片为作者自绘
方城佛塔分析
围合作为一种类型的图解,水平的大地上,一点点高度就足以给你一个全然不同的世界。充沛的强烈炽热的光线是吐鲁番当地的自然特征之一,一个向院落开放的一层建筑让人们更容易感受到更丰富的光线,既有强烈的炙烤,也有被建筑庇护形成阴影。
院落中央设置的观景塔也意在和高昌故城内大佛寺的原型在意象上建立联系,这包括塔身倾斜的比例和墙体上凹龛里的雕像。

↑ 材料建造 | 图片为作者自绘
材料建造分析
院落中种植的葡萄藤,其营造的舒适场所感更是表达了千百年来当地人们对强烈日照的防御与转化,通过葡萄藤架过滤的漫反射柔和光线,随着时间的推移,种植槽内的葡萄藤也将爬满整个庭院为旅客提供遮蔽的同时演绎四季的颜色。
高昌故城以土原料的建造方式呈现出构筑物融入大地的生长感,在游客中心的设计中同样再现出这种关系,以土为表面材料,封闭性很强的墙体既清晰讲述了建筑与自然的限定,也表达了不可割裂的生长感。
面积:250㎡
功能:住宅
建筑设计:武重义建筑事务所
案例来源:ArchDaily
项目简介:
住宅受到建筑师童年时代想象力的启发,希望在岘港核心地带建造一座充满丰富的热带植物、草原景观以及新鲜空气的乡村别墅。将土地分成两个平行的部分,以创造可呼吸的‘绿色之肺’:一部分作为花园,旁边是一堵巨大的绿色墙;另一部分作为生活空间,其大部分窗户和门朝向绿色肺,将自然光线、新鲜空气以及青草和鲜花的香气引入每一间房间。
照片、效果图





概念分析图 | 图片来源于网络



整体及室内照片 | 图片来源于网络





中庭照片 | 图片来源于网络
基础图纸

↑ 建筑一层平面图| 图片来源于网络

↑ 建筑二层平面图 | 图片来源于网络

↑ 建筑三层平面图 | 图片来源于网络

↑ 建筑屋顶平面图 | 图片来源于网络

↑ 建筑总平面图 | 图片来源于网络
分析+总结

↑ 整体关系 | 图片为作者自绘

↑ 生态调节 | 图片为作者自绘
生态调节分析
除了挂满植物的片墙,“绿肺”还有两个重要器官就是底层的泳池和顶部的种植屋顶。底部的水池在自然通风的作用下,实现中庭内部的降温;顶部的种植屋面有一定的厚度,相距的缝隙成为阳光的过滤器,起到遮阴的功能。屋顶的集水系统与底部的水池联结,共同形成水循环系统,最大程度地节约了资源。


↑ 空间及材料建造关系| 图片为作者自绘
材料建造分析
住宅主要由当地的建筑材料制成,均可从附近获得,比如Hoa Son假山矿山的灰色石材和广南省的砖块。此外,裸露的混凝土是越南低技术建设的有效材料,在恶劣的当地气候下也很耐用。绿墙上的植物此时也成为了重要的建材之一,参与到整体的材料构成中。
面积:14200㎡
功能:市场
建筑设计:Vilalta Arquitectura
案例来源:ArchDaily
项目简介:
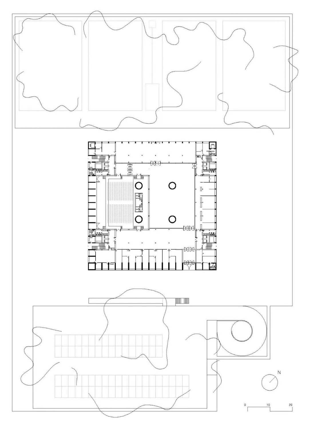
项目位于非洲东北的国家埃塞俄比亚的首都亚的斯亚贝巴。通过研究非洲最大的露天市场Old Mercato,建筑师决定对项目重新进行定位,摒弃传统的有着巨大店面的购物中心形式,设计一座多层现代集市。建筑体块将基地两侧的平行道路联系在一起,对角线连通,所有出入口都设置在被挖去的两角,为行人提供了方便的行走路线。这条通路一直延伸至建筑中部连接不同楼层的倾斜中庭,每层平面都围绕中庭设置,互不相同。
模型照片、效果图





图片来源于网络





中庭照片 | 图片来源于网络
基础图纸

↑ 建筑一层平面图| 图片来源于网络

↑ 建筑二层平面图 | 图片来源于网络

↑ 建筑三层平面图 | 图片来源于网络

↑ 建筑八层平面图 | 图片来源于网络

↑ 建筑十层平面图 | 图片来源于网络
分析+总结

↑ 整体关系 | 图片为作者自绘
整体关系分析
表皮和中庭共同在建筑中形成了被动通风系统,并且控制了建筑内的进光量,创造了一个光照适宜,氛围开放的室内空间。

↑ 视线及动线 | 图片为作者自绘
视线及动线分析
圆柱形的中庭顺应阳光的方向倾斜,从底层一直通往天空。处于市场各层的顾客以此为媒介发生视线的交流,围绕中庭的直跑楼梯将人带入空间的运动,指引着上升的方向。

↑ 被动式节能 | 图片来源于网络
被动节能分析
表皮和中庭共同在建筑中形成了被动通风系统,并且控制了建筑内的进光量,保护室内不受过于强烈的阳光照射,创造了一个光照适宜,氛围开放的室内空间。

↑ 形式的在地性 | 图片为作者自绘
建筑形式分析
建筑的表皮设计充分考虑了当地气候条件和文化传统,通过轻质混凝土预制系统建造,其形状来自于当地纺织品中常见的传统埃塞俄比亚碎片图案。
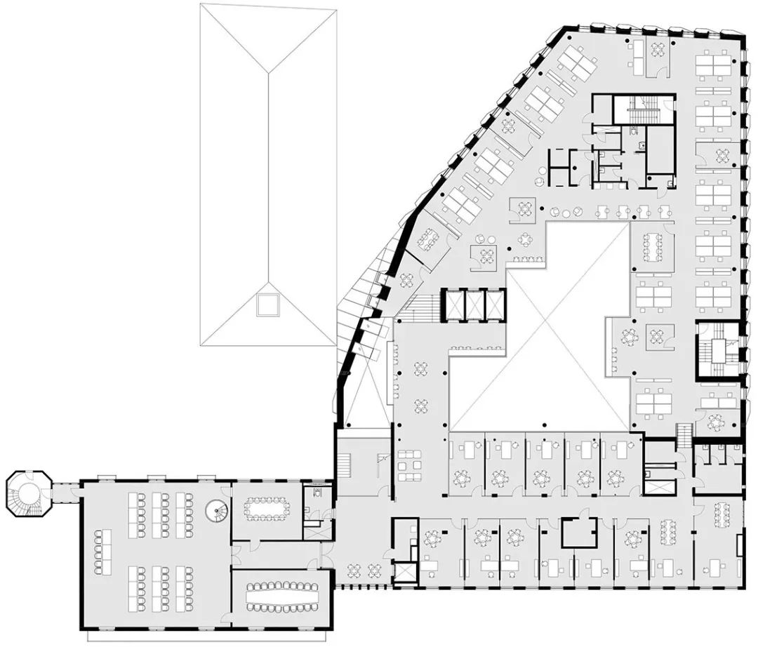
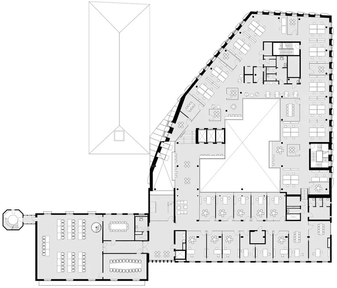
面积:12000㎡
功能:办公建筑
建筑设计:ALL
案例来源:gooood
项目简介:
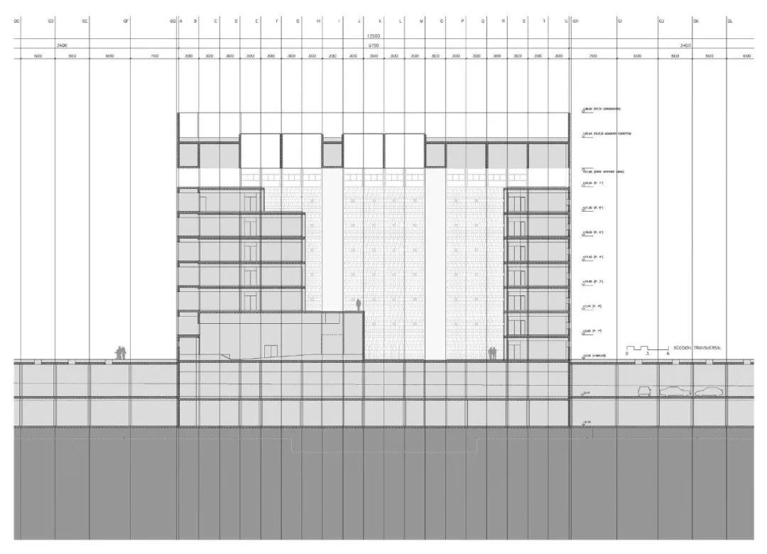
Bodø坐落在极圈以北的一座半岛,被辽阔的山脉和冰冷的挪威海环绕。在市中心,经过改造和扩建的旧市政厅成为了一座可容纳400名员工的标志性建筑。占地12,000平方米的市政厅包括一栋新建筑、两栋保存完好的既有建筑、以及三栋建筑间的连接区域。新的市政厅使三座建筑进一步合并成灵活统一的整体。立面倾斜的角度是依据现有屋顶轮廓线来决定的,这种独特的多立面几何形状可以帮助室内更好地捕捉北极圈以北剧烈变化的光照。
照片、效果图





整体及细部 | 图片来源于网络





中庭照片 | 图片来源于网络
基础图纸

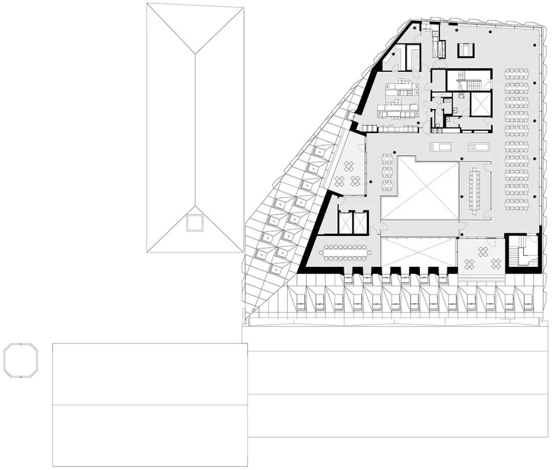
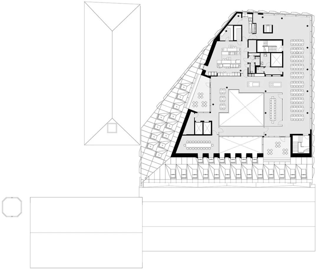
↑ 建筑一层平面图| 图片来源于网络

↑ 建筑二层平面图 | 图片来源于网络

↑ 建筑中间层平面图 | 图片来源于网络

↑ 建筑顶层平面图 | 图片来源于网络

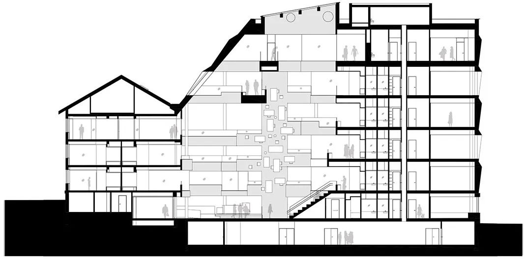
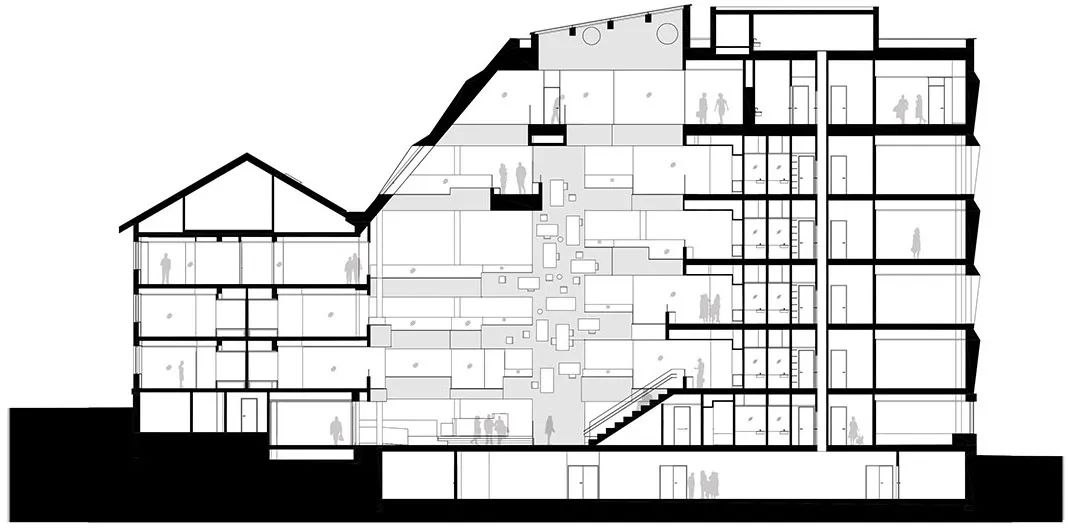
↑ 建筑剖面图 | 图片来源于网络
分析+总结

↑ 整体关系 | 图片为作者自绘

↑ 生成策略 | 图片为作者自绘
生成策略 在现有体量的基础上切去一角,与老建筑共同围合出入口广场;顺应周边建筑屋顶高度下压新建筑屋顶从而形成完整连续的天际线;新老建筑共同围合出可三面通达的入口空间;顶层设置餐厅可观赏辽阔的山脉和挪威海。

↑ 公民论坛 | 图片来源于网络
公民论坛 新建筑通过一个高大而引人注目的灵活中庭来与周围的既有建筑相连。该中庭被用作“公民论坛”空间,设有会议室并提供公共服务。大台阶、挑台、空中连廊以及开敞的电梯厅等成为中庭空间公共性的表达元素。 材料建造 室内的墙壁和天花板都选用浅灰木材来装饰。统一的木质衬里与基于全新工作方式的办公室布局相结合,营造了一种斯堪的纳维亚式的温馨的工作氛围。

未完待续.......

感谢 微建筑日记 授权分享
微信ID:archway-WEI 欢迎关注他们的微信公众号
-End-