搜索
学习中心
登录
首页
/
收藏
4/21 都市农场 TU Delft 可持续设计 建筑构造
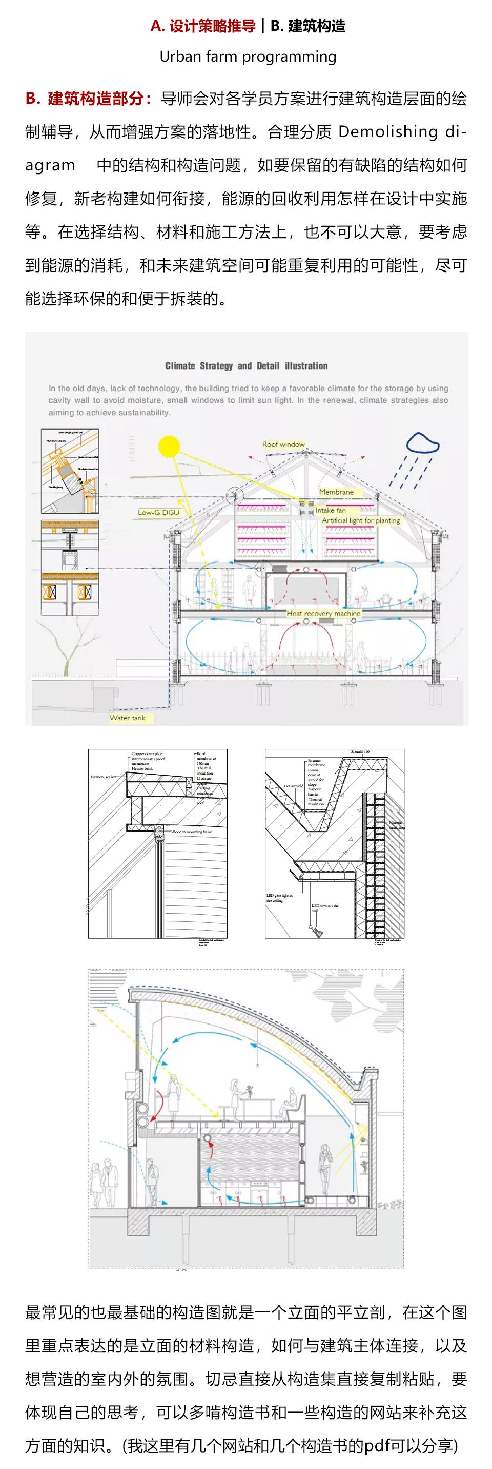
TUD海外导师策划团队带你做设计
¥
4500
.00
5人
立即学习
详情
目录
评论
共0节课
正序
暂无目录
小编正在努力制作中哦
评 论
暂无评论
快来写下你的评论吧
热门课程
系列课
韩神小班直播回放:《写实建筑表现的十项核心技能》
系列课
电脑手绘分析图表达
系列课
景观拼贴表现速成班
系列课
【VIP】基于SketchUP&rhino的vray6.0可视化初级课程
系列课
【VIP】SketchUP 初级课程
下一课
系列课
设计思维:新陈代谢派(菊竹清训、桢文彦、黑川纪章、矶崎新、大高正人、川添登等)
友情链接: