
这个社区不仅让建筑能在水上自由移动,还实现了低费用,为买不起房的年轻人提供一个家。
项目背景
瑞典房地产市场存在着很大的问题,已造成了不同辈分的人在经济上的不平等,很多人无法拥有住房。为了经济和住宅状况的长期稳定,广大的公民们提出了一个解决方案,意在“建设一个在水上漂浮的、建筑可移动的社会”,并将它命名为“floathub”,英文“Float Trust”。

城市规划:一种“在水上浮动”的社区生活
项目目标
本项目的目标在于,通过电脑数值控制技术,将居民分成一个个不同类型的集体,每个集体都能为社区创造价值,就像一个个发电机。所有集体聚合起来,就形成了一个相互依赖、自给自足的网络。最终,通过这种集体性行为,居民自己就能成为开发商。

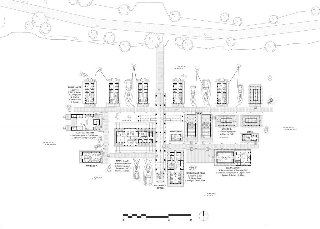
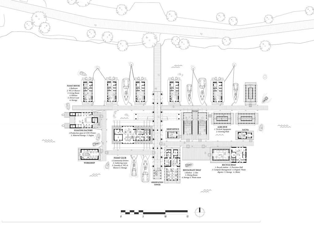
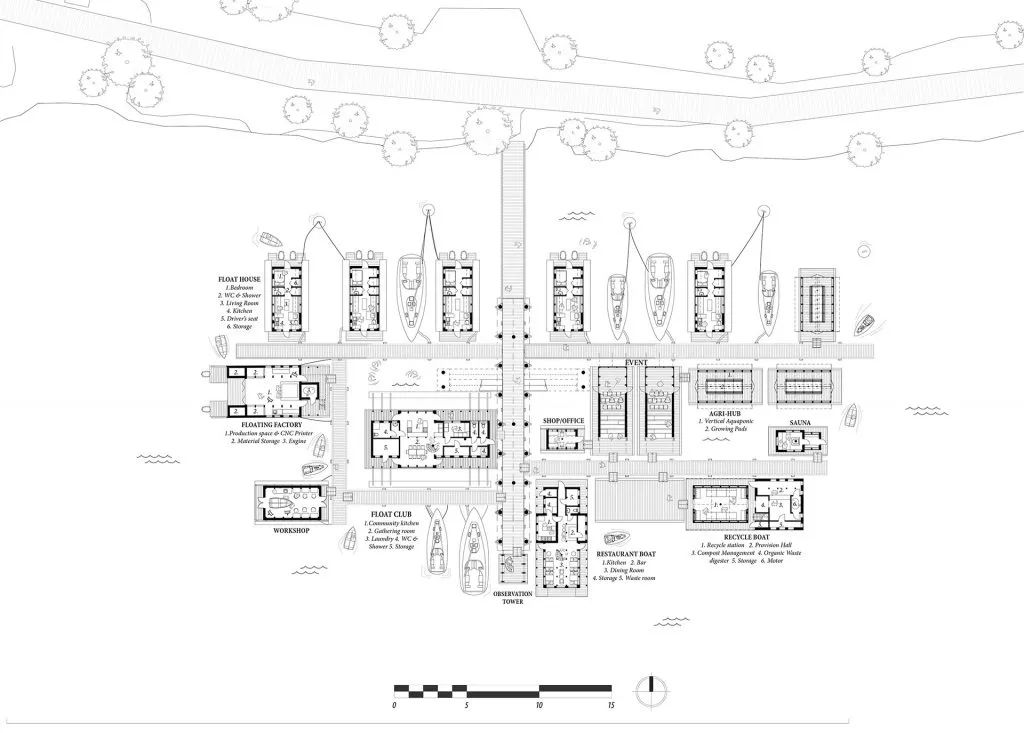
运作系统:生产、销售、回收
社区中的主要活动可分为三类:生产、销售和回收。首先,社区内有足够的资源来不断生产居民所需的物品,其次,它还能循环利用居民生活所产生的废物和盈余。这让移动社区具有了长期运营的能力。因此,他们不再需要市政系统和开发商,因为他们可以自己处理这些事项。
灵感来源

海盗港 Pirate Harbour
该项目的灵感来源于所谓的“海盗港”(Pirate Harbour),它已经是斯德哥尔摩市中心一个著名的港口,这里同时可接纳合法、非法船只的停泊。不过,2018年1月,市政当局已决定拆除该码头。

采访问答
问:为何开展此项目?
一切都源于我的社会地位。
作为一个年轻的成年人,我和同龄人一直努力在斯德哥尔摩找到一个住处。但是,长时间的住房排队和令人震惊的房价,让我的住房问题一直得不到解决。这一现状使得住房不再是一种人生来就有的权力,而变成了一种商品。

然而,后来,我用最少的钱买了一艘帆船。
这是我们拥有所有权、迈向独立性的第一步,这也是一种让年轻人免于承担债务的方式。这是第一次能有一个住处能称为“我们自己的家”。

再后来,我问自己,这种生活方式能成为一种普遍的解决方案吗?
然而,移动住宅已不断受到立法的挑战,已经处于十分脆弱的存在状态。所以,这一选择只能是一个临时的解决方案。

不过,对我来说,这是一个很有趣的项目话题,它的限制性和可能性正是吸引我的地方。
开始进行这个项目后,我提出了一些问题。比如,我们如何才能创建一个新的框架来获得一个家?我们能从“移动生活”中获益吗?更重要的是,我们能否正面回应这种生存方式的脆弱性,通过集体性活动来创造一种更安全稳定的住宅方式?在我看来,现在是时候探索一种移动性的长期住宅方式了,它不只是一个临时的解决方案。
问:如何看待此项目在未来30年的发展?
多年来,移动生活既被用来解决普遍性、持续性的住房危机,也被用来应对个人性的需求。在这种情况下,我认为,接下来的30年内,它将获得更广大的受众市场,并为创造一个更加充满活力和弹性的城市做出贡献。该项目还将促进新经济体的发展,允许公民远程工作,并有助于扩大资源网络,使“移动式住宅”不再仅是一个有限的“休闲景观”。

此外,项目的位置不仅限于水域,还会将陆地纳入使用范围。这样,无论是在水上还是在陆地上,人们都能随心所欲地、更加自由地生活。从这层意义上来说,该项目将让“四海为家”成为可能。

问:房地产市场会在多大程度上受到影响?
我想说,房地产会受到很大的影响!
我提出的这个解决办法能让瑞典的住房制度更加有创造力和趣味性,实现一种共享权益,而非资本积累。这将创造不同的住房存量,这种存量的多少取决于公民的需求。因此,这将创造一个不同的房地产市场,不能用货币价值来衡量。相反,它会影响需求的平衡和住房的使用,这些住房是可以负担得起的、可以使用的,它鼓励城市包容下许多不同的生活方式。

问:时间线是一种了解发展情况的媒介,你如何理解它的作用?
在某种程度上,时间线就像是一张如何实现共同目标的地图。项目开发的每一步都是有目的的。如果没有时间线,就很难理解不同步骤之间的关系。在项目的开始阶段,我制作了很多时间表,从这些表格中,我能分析出哪种方案最有效,以及不同方案的可能性。最后,它帮助我确定了我需要的类型,以及每个floathub具体能实现的功能、面积大小。

问:你还用了什么其他工具和材料?
在项目开始的时候,我秉持着质疑一切的态度。如果流动住宅不是公认的住宅类型,那么它的作用是什么?这个提问的过程帮助我获得了项目的进展层次。

位置对于移动性住宅来说是一个重要元素。
同时,我使用了地图,来了解实现移动性生活的条件。我写下了很多如何实现移动生活方式的想法,这对我起到了指导作用,从中我明白了,位置对移动居住者来说是很重要的,因为它正是移动性住宅的价值所在。我还进行了实地调查,以确定斯德哥尔摩的流动居民的具体情况。后来我用这些作为案例进行了研究,最终,它帮助我把这个项目的各部分联系了起来。

