感谢 ImpactStudio 授权分享一下内容
建筑作为生活的象征、城市的表皮,带有一种广告性质的宣传性,而“地标建筑”与各大都市春笋般生长的高层便是这种宣传性的直观体现。而近年的“最丑建筑”、“网红建筑”等概念越来越火,有人认为这是时代浮躁在建筑的体现,也有人认可设计作为产品更加市场化,褒贬不一。而在当下媒体宣传之下,“网红”建筑成了如今设计界难以忽视的引起热议的存在。
01“最丑”建筑
2020年12月23日,建筑畅言网第十一届中国十大丑陋建筑评选结束了,这场盛会在十几年来热度不减,所选出的建筑在失笑之余也令人不禁反思这设计乱像。
“与其说是审美力的缺失,不如说是审美的偷懒”,曾有学者如此评价评选出的最丑建筑。

融创剧院
就如今年上榜的广州融创大剧院,上榜理由为“创意牵强附会,胡乱拼贴中国元素,形态怪诞,伤害城市形象。”的确,在一些国人眼中,那些国外设计师把龙、长城、丝绸、功夫等几个标签拼贴在一起来营造“中国本土性”,反而被认为是对设计的不尊重,某些程度上也是设计调研上的偷懒与蔑视。
02 网红建筑
网红建筑主要用公众流量去定义:“如果某个建筑作品在网络中因为某些专业内或专业外因素,受到专业外大众的普遍关注,产生巨大流量,这样的建筑就是网红建筑”。
他们大致可分为两类:一类是建筑师“作者性”比较强的作品,如MAD、OMA、UN等等的作品;一类是“作者匿名”的作品,像各种排队打卡的“喜茶”DP店。网红建筑师也分可为两类:一类是连续创作出网红建筑作品的建筑师,如MVRDV、ZAHA等;一类是被普罗大众关注的“明星”型的、人比作品“红”的建筑师。

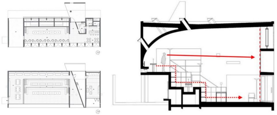
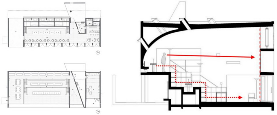
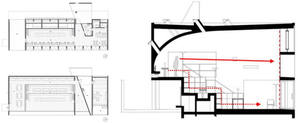
钟书阁
“作者性”网红建筑很多。2013年,建筑师俞挺设计的位于上海松江区的钟书阁书店建成。紧接着“上海郊外好去处”之类的热点新闻相继报道并吸引无数眼球,“600 m²的书店一天涌进了6000人次,其中不少并非书店原目标客户。”这大概是中国最早的“作者性”网红建筑之一。

最孤独图书馆
更有甚者。2015年5月,“一条”公众号推出名为《全中国最孤独的图书馆》的短视频。“最孤独图书馆”一夜爆红,建筑师以及非专业网友纷纷刷屏,前去实地打卡的人群塞满了图书馆和周边海滩,甚至需要提前很久预约。而建筑师董功对该建筑打动受众的重点—— “诗与远方,孤独”——此前完全没有考虑过。
“这是中国第一个由大众网络媒体运用专题方式报道建筑作品,直接引起公众关注,并最终火起来了的网红建筑。”

2017年12月,在大热的建筑真人秀《漂亮的房子》节目里,张海翱设计的“木兰草原之家”播出。在节目播出后,作品获得了英国建筑学会入围奖,这使得它突然“高大上”地出圈了。网上数据显示,截至2018年2月,该项目有738篇10万以上的微信文章,微博阅读量超过9万,电视点击量超过8亿。

木兰草原之家
这是中国第一个建筑师有意识主动运用网红规律,借助大众媒体全程参与宣传,影响力最广的“作者性”网红建筑。

这些现象让建筑设计这个小众的领域“出圈”,引起公众关注与审视,有好的一面,但同时资本的过度参与、哗众取宠的出现,也浮现了不利的一面。从中我们不难看出,“读图”(短视频)、碎片化阅读等等信息时代的元素也渗入到了建筑领域中。
03 快餐时代的启发
并非资本介入设计便是“堕落”,存在即合理,这些网红设计利用信息时代的特点取得成功也是值得我们反思和学习。
例如MVRDV的“书山”设计、天津滨海图书馆设计等,都是结合媒体宣传去打造形式,最终相得益彰。

天津滨海图书馆
2020年eVoLo获奖作品Taobao Tower: Cyber-Mall Skyscraper(by Gu Jiaxi, Zuo Minghao, Mu Rongxuan. Tutor Feng Gang)在设计中也结合了淘宝商品的推广与建筑的宣传性。
淘宝网是全球最大的电子商务平台之一,充分展示了中国市场的强劲需求和持续的活力。数字空间中的这种庞大的“摩天大楼”引起了作者的强烈兴趣,使之希望创建一个摩天大楼以揭示建筑与信息世界之间的当前联系。

该建筑由连接到城市交通系统的基座,大型机和众多可移动的商业客舱组成。连接到城市的基座确保了整个建筑物的稳定性,同时又充当了传递建筑物运行所需能量的媒介;轨道网络构成建筑物的内部运输系统;移动式驾驶室是建筑物创新和未来的关键。统一的模块化组合确保有效的通用性,并集成了零售,餐饮和休闲等多功能功能。商业机舱的移动是通过无人机牵引来实现的。

建筑物的整体空间参考了杰里米·边沁(Jeremy Bentham)的panopticon监狱的原型,该原型通过密集的网络信息增强了“周围”的感觉。内部通畅的中庭已成为进行商业促销和广告的重要场所,并且容纳了许多节日活动。立面上玉米般阵列的颗粒空间意味着网络信息检索的类目录模式。通过有效利用VR / AR等技术手段,用户将获得非常丰富的购物和服务体验。
2020十大最丑建筑评委周榕表示“最终评出的丑陋建筑的公共危害性,一是对自然环境、城市文化的破坏,二是建筑所体现的价值观。”设计中有意制造“噱头”并非是批判的行为,同学们的想法只要不违背社会准则,而是利用信息时代的特点加以融合,反而会是一个有创新的设计。
-End-
编辑 | 与鹿
校对 | 与鹿
版权声明
内容由 ImpactStudio 授权优优课编辑发布
如有转载请联系原作者
投稿邮箱
53963608@qq.com
