感谢 小印帆的笔记本 授权分享以下内容
编辑丨武淳雅(东南大学 大五)
作者丨孙同学(天津大学 研一)





01 知识点延伸

“类型是形成各种最具典型的建筑的一种内在法则。类型是按需要对美的渴望而发展的,一种特定的类型是一种生活方式与一种形式的结合。”
——阿尔多·罗西
什么是类型学?
生活中的原型(无论是空间的还是文化上的),都需要通过逻辑推演,形成外在形式,而所谓的类型学,不妨理解为这个转译、推演的过程。
简单来说,转译可以分四步。这里以拉斐尔·莫内欧罗马国家艺术博物馆为例。
第一步,明确要传达的,是什么样的信息?拉斐尔想要让参观者明确知道这是一个古罗马的遗迹博物馆,因此,古罗马成为设计的关键词。
第二步,寻找可传达信息意向。古罗马的建筑遗迹的平面、结构、材料,都是能使人联想起“古罗马”的空间要素。

第三步,提取原型。莫内欧从遗迹中提取出了拱圈、砖砌体、飞扶壁、高侧采光的具体手段与特定材料,使得建筑在各方面都带有古罗马风味。

最后,根据环境灵活转化原型。复古不意味着莫内欧抛弃了使用现代的材料(例如玻璃和钢),也不代表他的平面构成不带有现代性的、功能主义的考量。一切的要素都需要适应建筑建成当时的技术与环境。
02 案例分析
A. 项目背景
胡瓦犹太人教堂(Hurva synagogue)中的“胡瓦”一词,是“废墟”的意思。而之所以项目有此名,则涉及到项目地点耶路撒冷的一段独特的宗教历史。
犹太教被认为是世界上最早的宗教之一。而它的发源地耶路撒冷,也是伊斯兰教和基督教的圣城。其独特的宗教复杂性造就了物理城市的分野,在老城区中,根据不同的宗教,划分出了不同的部分。


老城分为4个区,分别属于基督、犹太、穆斯林、亚美尼亚。项目就在犹太区哭墙旁。
犹太教(Judaism)历史上,有三座圣殿。
第一圣殿(公元前800-前600),已经被摧毁。目前的复原图中,可以看出其大空间围绕小空间的组合模式:一个主要的祈祷房间和另外几个比较小的研究和学习犹太教《圣经》的房间组成。

第二圣殿(公元前539-70),毁于古罗马人之手,目前只残存哭墙遗址。千百年来,流落在世界各个角落的犹太人回到圣城耶路撒冷时,便会来到这面石墙前低声祷告,哭诉流亡之苦,所以被称为“哭墙”。犹太教把该墙看作是第一圣地,教徒至该墙必须哀哭,以表示对古神庙的哀悼并期待其恢复。
而一座曾经的犹太教大教堂就建造于哭墙旁,并毁于1948年的战火之中。因此,各方都希望能够在大教堂的废墟上,重建一所崭新的犹太教教堂,并用“胡瓦犹太人教堂”来称呼这个在废墟上重生的新教堂。康正是在这一阶段(1968-1973)中被力邀加入教堂的设计中。这一轮设计有多方设计者参与,但因为教堂的复杂背景与重大意义,最终因没有方案可以取得各方满意而全部被遗憾搁置。

第三圣殿,于2001年奠基,但是还是由于各方的需求不同,并未建成。当地人采用保护建筑遗产的策略对部分拱顶与空间进行了原貌重建。

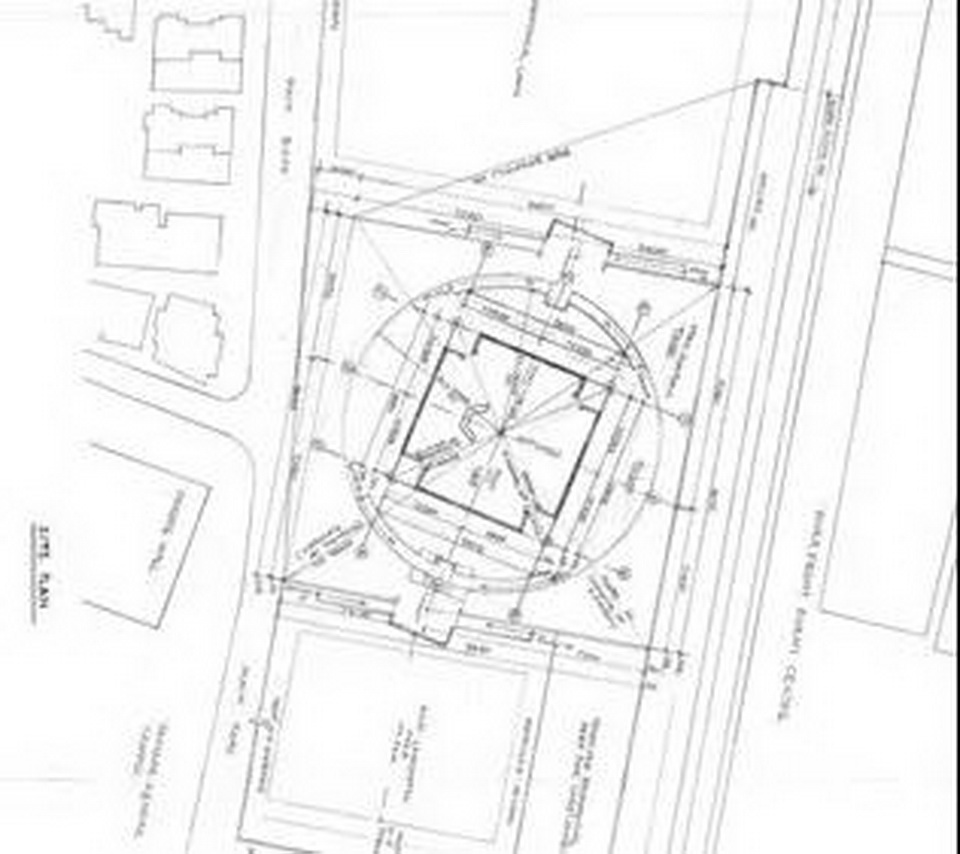
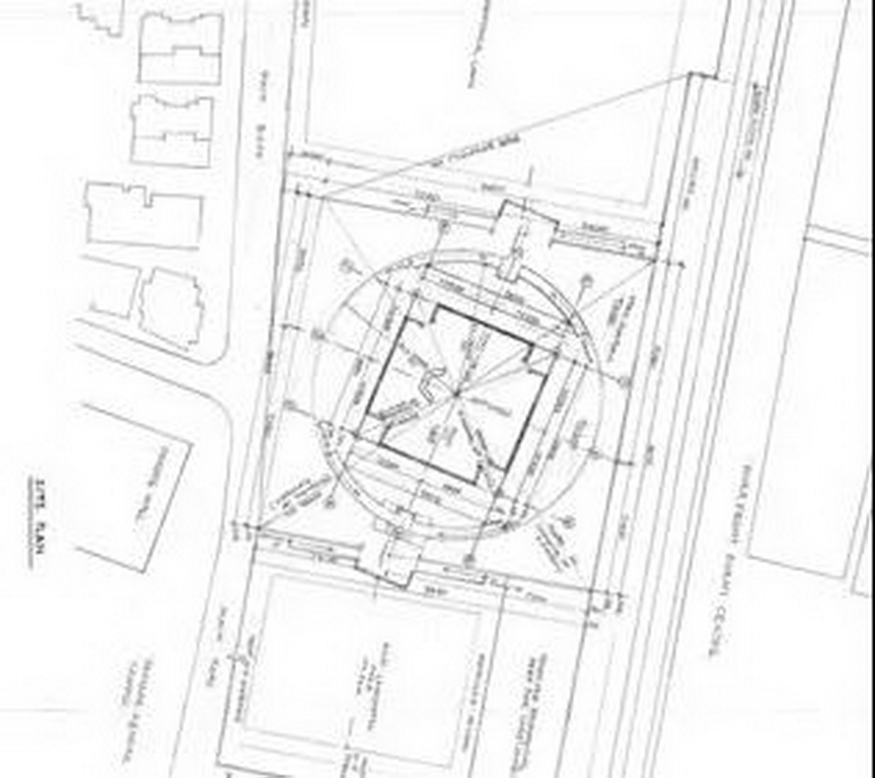
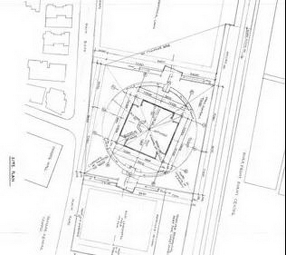
B.建筑布局
基于项目特殊的历史与宗教意义,康在第一稿方案中就确定了建筑轴线的轻微扭转。建筑不与其场地的任何一条边界平行,而是直面历史要素,以致敬圣殿山与哭墙。不是以场地边界,而是以更大的城市环境,更古老的象征为中心,这体现了康作为耶路撒冷环境委员会的成员,对更大的城市范围、更重要的城市要素的宏观视野。



平面图。可以看到建筑轴线扭转以适应历史场域。
C.类型学推演
还记得我们前文提到的类型学四步推演法吗?
在这里,我们用同样的手段,来分析康的空间吧。
第一步,明确要传达的,是什么样的信息?作为犹太教最重要的教堂,反映出犹太教在耶路撒冷的古老历史与神圣性,是建筑师的核心目的。
第二步,寻找可传达信息意向。康认为各地的古老神庙能够唤起观者类似的感受与共鸣,而老教堂的空间,因此选择它们作为原型提取的对象。

第三步,提取原型。康从埃及神庙中提取出了楔形的扁塔门墙体作为外部空间围合的要素,从第一圣殿的平面中提取出建筑由一圈小外部空间包围大内部空间的形式,从哭墙中提取大石块作为外墙材料,从被毁教堂中提取了室内祈祷空间三面环绕圣坛的组织形式。

最后,根据环境灵活转化原型。这一步中,康采用了两种要素:秩序,和光。这会在之后的两个部分中,以建筑的空间为例做详细说明。
D.秩序
建筑设计是充满思想的空间制作
如同埃克塞特图书馆的处理,建筑方形转角被设置为建筑的四个均等的入口,减弱了建筑被外部环境秩序的束缚,增强了空间的内向性与均衡性。

几何化(简化为45度直角)的拱形空间是一个贯穿始终的元素符号,相似的形状在不同的空间中交叠统一,这种精准的对位关系,如同建筑本身一样精确永恒。

每个对位的尽头都向环境开敞,使空间与视线延伸向无限远的尽头。


丰富的空间层次与延伸向无尽的视线
在由一层至二层的上升过程中,一条路径上串联的不同明暗、色彩、高度、视角开阔程度的空间。

E.光
The outside of the building belongs to the sun, the interiorbelongs to the shadows.
在康的建筑中,总有等待某一时刻的感觉。这种空间是属于时间的。例如万神庙,为了看一束光从天空慢慢洒下移动,可以停留很久很久。康选择把高光时刻交给光线,让光超越建筑本身的精神所在。
内外建筑之间的空间中,当光影和建筑本身融为一体,暖色调石材将光反射到冷色的混凝土上,墙面成为光的画板。
“阳光经过外层石塔和内部塔楼屋顶之间的空隙进入建筑,经过石质表面的反射和散射,均匀的散布到塔楼的天花板上,经过混凝土的二次反射,以更柔和的方式照亮建筑内部。石塔、混凝土墙和屋顶中间的大量缝隙,配合太阳的不同角度,在建筑内形成直射、散射、冷色光和暖色光交织的令人着迷的复杂光影效果。”

夹缝空间示意

冷暖对比、光线漫射
核心的区域与核心的光源,时间在变,建筑不变;光在变,空间也在变。时间的流逝带来一种静谧的永恒感。这引起人类对于自然的一种本能的集体记忆。

F.最终结果





03 总结与反思
类型抽象阶段:明确传达信息——寻找可传达信息意向——提取原型
类型场所化阶段:结合特定环境转化原型——加入人文关怀
类型学设计方法:关注实际问题、避免形式盲从
历史时间观:对历史客观保护和对时代文化的创造应该得到平衡的对待
04 课后思考
1.按照平面图,绘制合理的浏览路线,然后手绘出对应的空间高度变化。

2.你觉如果你有权决定,你会选择哪一个方案?真实的拱券还是抽象的拱券?
3.试着将中国传统建筑的进行原型的“抽象”吧,看看你能不能继续将他“场景化”?
05 参考文献及引用
《未建成的精彩:对路易·康《胡瓦犹太教堂》的解析_张耀辉》
《路易斯.康,建筑师中的哲学家:建筑是深思熟虑的空间创造》
《静谧与光明》,约翰·罗贝尔
《路易斯.I.康的空间构成》,原口秀昭
《城市建筑学》,阿尔多·罗西
《建筑类型学》,汪丽君
https://www.bilibili.com/video/av9012145/
-END-
编辑 | 与鹿
校对 | 与鹿
版权声明
内容由 小印帆的笔记本 授权优优课编辑发布
如有转载请联系原作者
投稿邮箱
53963608@qq.com
