

地处荷兰鹿特丹的Fenix移民博物馆已开始施工,该项目由Droom en Daad基金会委任,由马岩松带领的MAD建筑事务所改造和设计,将成为MAD在欧洲落成的首个文化项目。

Droom en Daad基金会会长Wim Pijbes先生是荷兰著名的历史学家,曾任荷兰国立博物馆(Rijksmuseum) 馆长。Pijbes先生这样介绍创建移民博物馆的初衷:“我们希望呈现一个具有普遍意义的故事。人们在一生中的某个时刻下定决心,无论是出于战争、贫穷、宗教还是其他原因,他们决定将拥有的一切放入一两个旅行箱内,到世界的另一端重新开始……我们要做的就是去理解这种情感,并将它们表达出来。”

在对Fenix移民博物馆的展望中,“移民”主题被升华为流动、多元、碰撞等与当代生活息息相关的理念。MAD提出的改造与设计方案以飞升的银色楼梯和海鸟雕塑为Fenix库房带来全新面目。同时,建筑临河的底层空间融合了创意、餐饮、文化等多元功能,充分激发社区活力,让Fenix移民博物馆不仅延续历史,还成为催生新文化的重要场所。

待改造的Fenix仓库始建于1923年,曾是全球最大的库房。其所处的Katendrecht半岛是欧洲历史上重要的移民港口,千百万欧洲人曾于此登船,也有大批华人从这里开始侨居欧洲的生活。在百年的时间里,Fenix库房在二战中被摧毁,又在上世纪40-50年代经历多次修缮,承载着鹿特丹珍贵的历史记忆。

自19世纪以来,千百万移民在鹿特丹的Katendrecht半岛登船,沿着新马斯河驶向北大西洋方向,到大洋彼岸开始新的生活。

1910年前后,移民在鹿特丹登船的场景。在1880-1920年间,约有两百万的移民在鹿特丹港登船,大部分人的目的地是纽约爱丽丝岛 © Collection Stadsarchief Rotterdam/Municipal Archives, Rotterdam

一艘船停泊在Fenix仓库前,约1925年 © Collection Stadsarchief Rotterdam/Municipal Archives, Rotterdam
MAD建筑事务所对Fenix的改造方案将鹿特丹的历史与当下连接。两条盘旋上升的银色楼梯破土而出,透过玻璃幕墙依稀可见;一座海鸥雕塑轻巧地落在建筑一角,隐喻着移民历史,也呼应着水滨港口的环境。


MAD的创始人马岩松说:“远距离看,我们新增的楼梯和观景平台像一个独立的实体,但当你走到建筑面前,它就像一件雕塑作品一样引发你进入探索的欲望。它标志着Fenix对欧洲移民历史的见证,同时也映射着城市的未来。”

MAD的改造从尊重历史出发,保留了Fenix库房标志性表面绿色钢窗和内部混凝土主体结构。建筑中部的立面和屋顶被打开,替换为玻璃幕墙与天花,更加通透、明亮,带来便于使用且可亲的展览空间。同时,一览无遗的空间视觉也让新增的旋转楼梯成为城市风景的一部分。

MAD设计的两条旋转楼梯以不同的速度相互交缠,从玻璃屋顶延伸而出,在顶部连结形成一处360度的观景平台。两条楼梯在空间中穿梭,巧妙地切割了原仓库缺乏人体尺度的空间,也为观众提供了多样的参观路线。

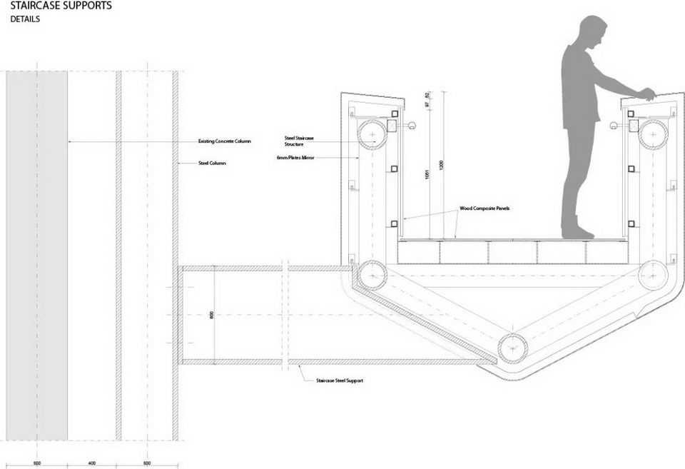
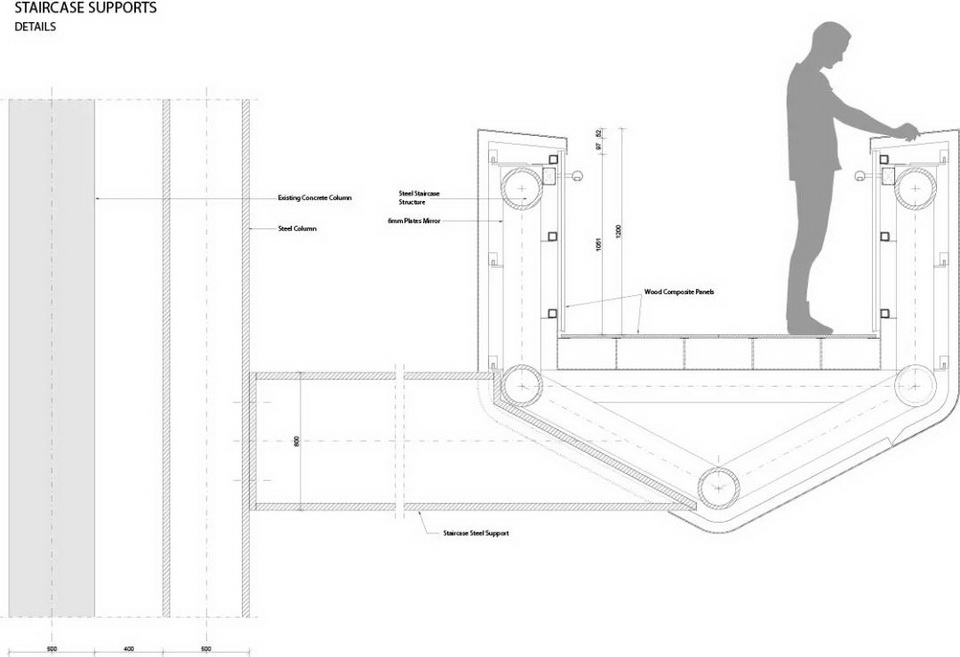
楼梯剖面细节示意图。整个改造只拆除了两根梁和两个柱子,在大体保留原始混凝土结构的基础上轻巧嵌入新的结构,对楼梯提供支撑。

建筑屋顶曲面玻璃细节剖面图。屋顶的曲面异形玻璃天花带来流畅的室内外空间转换,让楼梯结构如有生命的有机体般延伸而出。

楼梯剖面细节示意图。楼梯的内部结构与阶梯高度贴合整体曲面造型设计,所有的停留平台坡度和缓,避免了直角转折的出现,保证曲面造型的连续和完整。
楼梯的不锈钢外表皮反射着周遭的环境,台阶为温暖的木头质地,和建筑原本的混凝土和钢材料形成对比。不锈钢与木材的选择也旨在引发观众对船舱的联想,让观众如当年的移民一般登船远望,展开对新生活的想象。

建筑的改造充分考虑了整体的功能实现以及对周遭环境的融入。观众从河边或城市均可进入博物馆,到展厅观展或走上旋转楼梯俯瞰城市,游览动线弹性。地面层的设计融合了创意、文化和餐饮,满足多样的功能需求,让文化和艺术真正进入人的生活。
落成后,Fenix移民博物馆将联合当地多家艺术机构呈现以“移动”为主题的当代艺术作品和相关史料,同时在此登船的旅客信息也将记录成册对公众开放。

Pijbes先生说:“博物馆是一个具有严格定义的文化现象,在人们的脑海中有着非常特定的图像。我希望找到另一个词汇去表达一种混合的功能,一个场所,一个平台,一个广场。”
随着Fenix的改造完成,Katendrecht半岛将成为连接鹿特丹南北城市的桥梁,让人们通过丰富的展览与文化活动亲近历史,也让“移民”这一具有普遍意义的主题为更多人带来启发和思考。

Fenix移民博物馆现已开始施工,预计于2025年建成并投入使用。

Fenix仓库现状,年轻人在仓库对面的草地上享受着夏末的野餐时光



建筑内部改造已经开始
Fenix移民博物馆大事记

2018.10.16 MAD创始人马岩松(右)与Droom en Daad基金会会长Wim Pijbes (左)签订委任书

2019.01.10 现场勘察



2020.01.08 鹿特丹市民听证会

2020.01.08 楼梯镜面不锈钢1:1样板段
项目图纸与模型照片

Fenix移民博物馆模型,摄影:Rubén Dario Kleimeer

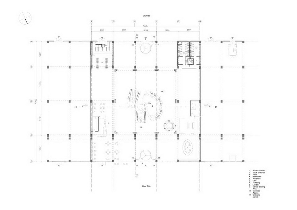
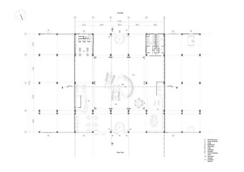
建筑首层平面图

建筑二层平面图

建筑屋顶平面图

建筑剖面图II'

建筑剖面图GG'
参考资料:
“MAD Unveils Plans for Fenix,Rotterdam’s Newest Cultural Foundation”, Wallpaper*, Dec 28, 2018. https://www.wallpaper.com/architecture/fenix-foundation-mad-architects-rotterdam
“From Rotterdam, Many Left for A New Life”, New York Times, April 24, 2018. https://www.nytimes.com/2018/04/24/arts/from-rotterdam-many-left-for-a-new-life.html
Fenix移民博物馆
荷兰鹿特丹
2018-2025
类型:博物馆
基地面积:13,200平方米
楼梯坡道面积:1,050 平方米
建筑高度:28.3米
主持合伙人:马岩松、党群、早野洋介
主持副合伙人:Andrea D’Antrassi
设计团队:Neeraj Mahajan, Marco Gastoldi, Edgar Navarrete, Cievanard Nattabowonphal, Jordan Demer, Chen Yien, Yuki Ishigami, Pittayapa Suriyapee, Claudia Hertrich, Alessandro Fisalli
业主:Droom en Daad基金会
执行建筑师:EGM
古建改造:Bureau Polderman
工程顾问:IMd Raadgevende Ingenieurs
钢结构工程师:CSM Steelstructures
电镀工程师:Central Industry Group (CIG)
灯光顾问:Beersnielsen lichtontwerpers
MEP设计:Bosman Bedrijven
MEP顾问:DWA
建筑力学顾问:LBP Sight
感谢 MAD建筑事务所 授权分享 微信ID:madarchitects 欢迎关注他们的微信公众号 -End-
编辑 | 与鹿
校对 | 与鹿
版权声明
内容由 MAD建筑事务所 授权建筑小学堂编辑发布
如有转载请联系原作者
投稿邮箱
53963608@qq.com
