以下文章来源于建道筑格ArchiDogs ,作者建道ArchiDogs

![]()
非常感谢
建道筑格ArchiDogs
授权 建筑小学堂 分享以下内容
(本文已授权,转载请联系该公众号)
CURA 临时重症舱
意大利建筑工作室Carlo Ratti Associati与NABA米兰新美术学院及Domus设计学院科技创意总监Italo Rota,联合工程师、医生、军事专家和NGO共同合作,设计了CURA(Connected Units for Respiratory Ailments)临时重症舱,用于呼吸道感染患者的重症监护,所有的必须医疗设备都可以容纳在一个20英尺集装箱中。
每个集装箱都配备了负压生物隔离装置,使舱内空气符合感染隔离室的标准,也满足中国发布的Covid-19医院标准,最重要的是每个单元可以独立运作。
![]()
![]()



© CURA / CRA-Carlo Ratti Associati和Italo Rota





![]()
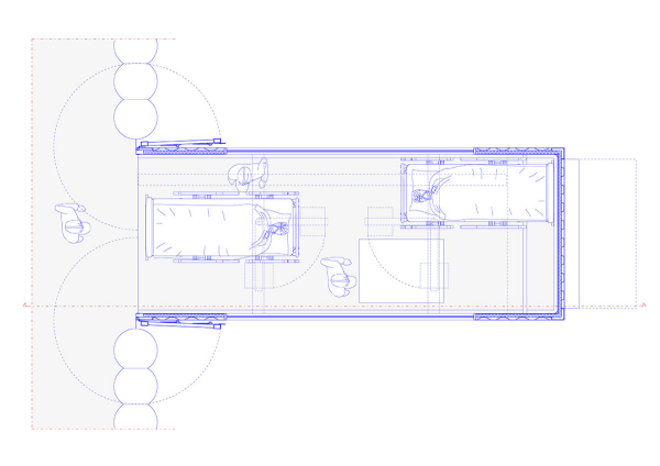
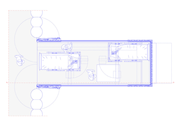
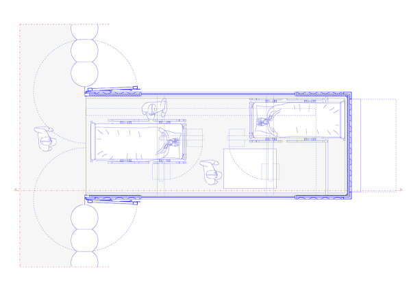
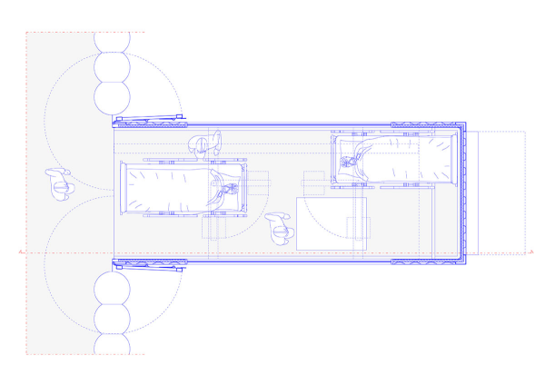
JUPE 健康单元![]()
![]()

![]()
Jupe单元包括三种类型,空间具有多种可能性。
![]()
![]()
JUPE REST
![]()


![]()

微信ID:ArchiDogs_AD 欢迎关注他们的微信公众号 -End-